Вентилятор радиальный высокого давления ВР 200-20
Описание
- Вентиляторы радиальные высокого давления
- Предназначены для перемещения газопаровоздушных смесей в системах с большим аэродинамическим сопротивлением
Конструктив
- Корпус в виде улитки
- Углы поворота корпуса: 0°, 45°, 90°,135°, 270°, 315°
- Левое (Л) или правое (Пр) направление вращения рабочего колеса/положение корпуса
- Тип рабочего колеса «РВВ» с загнутыми вперед лопатками
- Материалы корпуса и рабочего колеса зависят от исполнения
Двигатель
- Трехфазный асинхронный электродвигатель
- Степень защиты электродвигателя не ниже IP 54
Условия эксплуатации
- Климатическое исполнение по ГОСТ 15150-69: У2 (для эксплуатации под навесом). Допускается эксплуатация в У1 (на открытом воздухе) при комплектации кожухом электродвигателя или двигателем У1
- Температура окружающей среды от -45°С до +40°С
Таблица исполнений
|
Исполнение |
Температура перемещаемой среды, °С |
Материал |
Назначение |
Маркировка взрывозащиты* |
Группы взрывоопасной среды |
Классы взрывоопасных зон помещения |
|
Общепромышленное О |
от -45 до +80 |
Оцинкованная/ Углеродистая сталь |
Для перемещения воздуха и других газопаровоздушных смесей |
|
|
|
|
Теплостойкое Т200 |
от -45 до +200 |
Оцинкованная/ Углеродистая сталь |
Для перемещения воздуха и других газопаровоздушных смесей,с максимальной температурой до +200 °С |
- |
- |
- |
|
Коррозионностойкое теплостойкое К1Т200 |
от -45 до +200 |
Нержавеющая сталь |
Для перемещения агрессивных невзрывоопасных воздушных смесей |
- |
- |
- |
|
Коррозионностойкое К1 |
от -45 до +80 |
- |
- |
- |
||
|
Взрывозащищенное Ex1 |
от -45 до +80 |
Углеродистая/ оцинкованная сталь, латунь |
Для применения в потенциально взрывоопасной газовой среде категорий IIА, IIВ, IIС (кроме взрывоопасных смесей с воздухом: коксового газа категории IIВ группы Т1; окиси пропилена, окиси этилена, формальдегида, этилтрихлорэтилена, этилена категории IIВ группы Т2; винилтрихлорсилена, этилхлорсилена категории IIB группы Т3) |
1Ех h IIС Т4 Gb Х 1Ех h IIВ Т4 Gb Х |
Т4 |
1 и 2 |
|
Взрывозащищенное Ex2 |
от -45 до +80 |
Алюминиевые сплавы |
1Ех h IIС Т4 Gb Х 1Ех h IIВ Т4 Gb Х
|
Т4 |
1 и 2 |
|
|
Взрывозащищенное теплостойкое Ex1Т200 |
от -45 до +200 |
Углеродистая/ оцинкованная сталь, латунь |
1Ех h IIС Т2 Gb Х 1Ех h IIВ Т2 Gb Х |
Т2 |
1 и 2 |
|
|
Взрывозащищенное коррозионностойкое ExК1 |
от -45 до +80 |
Нержавеющая сталь/ латунь |
1Ех h IIС Т4 Gb Х 1Ех h IIВ Т4 Gb Х |
Т4 |
1 и 2 |
|
|
Взрывозащищенное коррозионностойкое теплостойкое ExК1Т200 |
от -45 до +200 |
Нержавеющая сталь/ латунь |
1Ех h IIС Т2 Gb Х 1Ех h IIВ Т2 Gb Х |
Т2 |
1 и 2 |
*Подгруппа газа IIC или IIB зависит от подгруппы газа применяемого комплектующего оборудования (электродвигателя).
Перемещаемая среда не должна содержать:
- липких веществ, волокнистых материалов, пыли и других твердых примесей в концентрации 100 мг/м3;
- взрывоопасных веществ под избыточным давлением или нагревающихся выше температуры их самовоспламенения;
- пары и газы, вызывающие ускоренную коррозию материалов и покрытий указанных исполнений.
Для изделий из нержавеющей стали (К1) не допускается контакт с сильными восстановителями (щелочи), сильными окислителями (кислоты) и морской водой.
Для изделий из алюминиевых сплавов (Ex2) не допускается контакт с окислами железа.
** Вентиляторы конструктивного исполнения 5 не изготавливаются в исполнении Ex (Ex1, ExК1, Ex1Т200, ExК1Т200).
Дополнительная комплектация

1 - Кожух ЭД-ВР 200-20
2 - Виброизоляторы
* Дополнительные комплектующие в комплект поставки не входят.
Полная информация о вентиляторах ВР 200-20 в электронном pdf-каталоге по ссылке во вкладке "Характеристики".
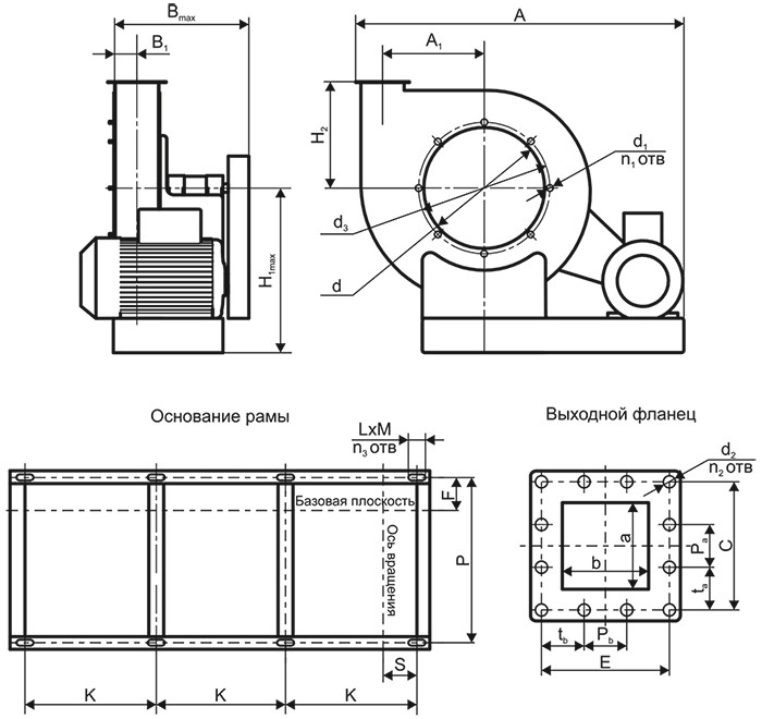
Габаритные и присоединительные размеры вентиляторов ВР 200-20 (мм). Исполнение 1

|
№ вент. |
Габарит ЭД |
a |
b |
C |
E |
Pa |
Pb |
ta |
tb |
n2 |
d2 |
d |
d3 |
d1 |
n1 |
H1 max |
H2 |
H max |
B max |
B1 |
A |
A1 |
F |
K |
N |
n3 |
P |
L |
M |
|
3,15 |
56 |
79 |
79 |
117 |
117 |
- |
- |
- |
- |
4 |
10 |
221 |
261 |
М10 |
8 |
277 |
195 |
472 |
332 |
45 |
443 |
181 |
1 |
- |
230 |
4 |
214 |
20 |
10 |
|
63 |
284 |
479 |
|||||||||||||||||||||||||||
|
71 |
292 |
487 |
|||||||||||||||||||||||||||
|
80 |
301 |
496 |
382 |
||||||||||||||||||||||||||
|
3,55 |
63 |
89 |
89 |
127 |
127 |
- |
- |
- |
- |
4 |
10 |
249 |
289 |
М10 |
8 |
329 |
230 |
560 |
390 |
50 |
498 |
204 |
4 |
- |
272 |
4 |
240 |
20 |
10 |
|
71 |
|||||||||||||||||||||||||||||
|
80 |
323 |
554 |
|||||||||||||||||||||||||||
|
90 |
333 |
563 |
432 |
||||||||||||||||||||||||||
|
100 |
329 |
560 |
450 |
||||||||||||||||||||||||||
|
4,0 |
71 |
100 |
100 |
138 |
138 |
- |
- |
- |
- |
4 |
10 |
280 |
330 |
М10 |
8 |
339 |
256 |
595 |
416 |
55 |
560 |
230 |
26 |
- |
325 |
4 |
290 |
20 |
10 |
|
80 |
370 |
626 |
421 |
||||||||||||||||||||||||||
|
100 |
368 |
624 |
453 |
||||||||||||||||||||||||||
|
112 |
|||||||||||||||||||||||||||||
|
4,5 |
71 |
113 |
113 |
177 |
177 |
88 |
88 |
89 |
89 |
8 |
12 |
315 |
365 |
М10 |
8 |
405 |
278 |
683 |
538 |
62 |
642 |
259 |
25 |
216 |
431 |
6 |
334 |
24 |
12 |
|
80 |
|||||||||||||||||||||||||||||
|
112 |
572 |
||||||||||||||||||||||||||||
|
132 |
647 |
||||||||||||||||||||||||||||
|
160 |
722 |
||||||||||||||||||||||||||||
|
5,0 |
80 |
125 |
125 |
189 |
189 |
95 |
95 |
95 |
95 |
8 |
12 |
350 |
400 |
М10 |
8 |
450 |
318 |
736 |
594 |
70 |
705 |
288 |
24 |
230 |
460 |
6 |
334 |
24 |
12 |
|
90 |
|||||||||||||||||||||||||||||
|
100 |
|||||||||||||||||||||||||||||
|
132 |
768 |
616 |
|||||||||||||||||||||||||||
|
160 |
765 |
782 |
390 |
||||||||||||||||||||||||||
|
5,6 |
90 |
140 |
140 |
204 |
204 |
125 |
125 |
40 |
40 |
12 |
12 |
392 |
442 |
М10 |
12 |
492 |
348 |
882 |
503 |
79 |
783 |
322 |
28 |
165 |
370 |
6 |
434 |
24 |
12 |
|
100 |
892 |
520 |
165 |
370 |
24 |
12 |
|||||||||||||||||||||||
|
160 |
843 |
795 |
275 |
550 |
36 |
12 |
|||||||||||||||||||||||
|
180 |
972 |
875 |
275 |
550 |
36 |
12 |
|||||||||||||||||||||||
|
200 |
992 |
905 |
275 |
550 |
36 |
12 |
|||||||||||||||||||||||
|
6,3 |
112 |
158 |
158 |
222 |
222 |
125 |
125 |
49 |
49 |
12 |
12 |
441 |
516 |
М12 |
20 |
535 |
393 |
924 |
600 |
84 |
880 |
363 |
56 |
250 |
500 |
6 |
534 |
24 |
12 |
|
132 |
535 |
944 |
600 |
||||||||||||||||||||||||||
|
200 |
541 |
934 |
927 |
40 |
301 |
646 |
707 |
14 |
|||||||||||||||||||||
|
225 |
545 |
938 |
974 |
602 |
|||||||||||||||||||||||||
|
250 |
570 |
963 |
1024 |
40 |
301 |
602 |
6 |
707 |
28 |
14 |
|||||||||||||||||||
|
7,1 |
132 |
178 |
178 |
242 |
242 |
125 |
125 |
59 |
59 |
12 |
12 |
497 |
572 |
М12 |
20 |
600 |
437 |
1037 |
667 |
95 |
984 |
409 |
65 |
270 |
540 |
6 |
642 |
24 |
12 |
|
160 |
647 |
1084 |
742 |
||||||||||||||||||||||||||
|
250 |
737 |
1174 |
920 |
95 |
984 |
65 |
332 |
664 |
6 |
642 |
36 |
18 |
|||||||||||||||||
|
280 |
767 |
1204 |
995 |
379 |
759 |
6 |
36 |
18 |
|||||||||||||||||||||
|
8,0 |
160 |
200 |
200 |
269 |
265 |
125 |
125 |
72 |
70 |
12 |
12 |
560 |
650 |
М16 |
20 |
720 |
477 |
1197 |
822 |
106 |
1100 |
462 |
51 |
284 |
568 |
6 |
408 |
28 |
14 |
|
9,0 |
180 |
225 |
225 |
289 |
289 |
125 |
125 |
82 |
82 |
12 |
12 |
630 |
720 |
М16 |
20 |
874 |
549 |
1423 |
926 |
121 |
1244 |
517 |
48 |
321 |
642 |
6 |
528 |
28 |
14 |
|
200 |
894 |
1443 |
986 |
48 |
321 |
642 |
6 |
528 |
28 |
14 |
|||||||||||||||||||
|
10,0 |
180 |
250 |
250 |
324 |
324 |
81 |
81 |
81 |
81 |
16 |
14 |
700 |
790 |
М16 |
20 |
874 |
610 |
1484 |
939 |
135 |
1361 |
575 |
86 |
378 |
723 |
6 |
528 |
36 |
18 |
|
200 |
876 |
1487 |
977 |
||||||||||||||||||||||||||
|
225 |
919 |
1529 |
1052 |
86 |
378 |
723 |
6 |
528 |
36 |
18 |
|||||||||||||||||||
|
250 |
944 |
1554 |
1097 |
||||||||||||||||||||||||||
|
11,2 |
200 |
280 |
280 |
354 |
354 |
89 |
89 |
89 |
89 |
16 |
14 |
784 |
874 |
М16 |
24 |
954 |
655 |
1609 |
1041 |
146 |
1518 |
643 |
76 |
443 |
886 |
6 |
638 |
28 |
14 |
|
225 |
979 |
1634 |
1116 |
95 |
443 |
886 |
6 |
638 |
36 |
18 |
|||||||||||||||||||
|
250 |
1004 |
1659 |
1161 |
||||||||||||||||||||||||||
|
280 |
1034 |
1689 |
1316 |
||||||||||||||||||||||||||
|
12,5 |
200 |
313 |
313 |
386 |
386 |
94 |
94 |
94 |
94 |
16 |
14 |
875 |
965 |
М16 |
24 |
1001 |
795 |
1796 |
1270 |
168 |
1701 |
719 |
151 |
517 |
1034 |
6 |
638 |
36 |
18 |
|
225 |
1026 |
1821 |
1270 |
||||||||||||||||||||||||||
|
250 |
1051 |
1846 |
1270 |
151 |
517 |
1034 |
6 |
638 |
36 |
18 |
|||||||||||||||||||
|
280 |
1081 |
1876 |
1372 |
151 |
517 |
1034 |
6 |
638 |
36 |
18 |
Габаритные и присоединительные размеры вентиляторов ВР 200-20 (мм). Исполнение 3

|
№ вент |
a |
b |
C |
E |
Pa |
Pb |
ta |
tb |
n2 |
d2 |
d |
d3 |
d1 |
n1 |
H1 max |
H2 |
H max |
B max |
B1 |
A |
A1 |
F |
K |
n3 |
P |
L |
M |
|
5,6 |
140 |
140 |
204 |
204 |
125 |
125 |
40 |
40 |
12 |
12 |
392 |
442 |
М10 |
12 |
492 |
342 |
834 |
1413 |
75 |
763 |
322 |
28 |
382 |
8 |
434 |
24 |
12 |
|
6,3 |
158 |
158 |
222 |
222 |
125 |
125 |
49 |
49 |
12 |
12 |
441 |
516 |
М12 |
20 |
551 |
384 |
935 |
1506 |
84 |
854 |
362 |
37 |
428 |
8 |
534 |
24 |
12 |
|
7,1 |
178 |
178 |
242 |
242 |
125 |
125 |
59 |
59 |
12 |
12 |
497 |
572 |
М12 |
20 |
647 |
433 |
1080 |
1858 |
96 |
973 |
408 |
40 |
517 |
8 |
642 |
28 |
14 |
|
8,0 |
200 |
200 |
264 |
264 |
125 |
125 |
70 |
70 |
12 |
12 |
560 |
650 |
М16 |
20 |
720 |
488 |
1208 |
1575 |
107 |
1090 |
460 |
51 |
431 |
8 |
382 |
28 |
14 |
|
9,0 |
225 |
225 |
289 |
289 |
125 |
125 |
82 |
82 |
12 |
12 |
630 |
720 |
М16 |
20 |
790 |
549 |
1339 |
1662 |
121 |
1230 |
518 |
56 |
466 |
8 |
432 |
28 |
14 |
|
10,0 |
250 |
250 |
324 |
324 |
125 |
125 |
37 |
37 |
16 |
14 |
700 |
790 |
М16 |
20 |
870 |
610 |
1480 |
1807 |
133 |
1360 |
575 |
68 |
493 |
8 |
528 |
36 |
18 |
|
11,2 |
280 |
280 |
354 |
354 |
125 |
125 |
52 |
52 |
16 |
14 |
784 |
874 |
М16 |
24 |
954 |
683 |
1637 |
2159 |
150 |
1516 |
644 |
76 |
612 |
8 |
638 |
36 |
18 |
|
12,5 |
313 |
313 |
387 |
387 |
125 |
125 |
69 |
69 |
16 |
14 |
875 |
965 |
М16 |
24 |
1045 |
763 |
1808 |
2442 |
167 |
1685 |
719 |
93 |
661 |
8 |
638 |
36 |
18 |
Габаритные и присоединительные размеры вентиляторов ВР 200-20 (мм). Исполнение 5

|
№ вент |
a |
b |
C |
E |
Pa |
Pb |
ta |
tb |
n2 |
d2 |
d |
d3 |
d1 |
n1 |
H1 max |
H2 |
H max |
B max |
B1 |
A |
A1 |
F |
K |
n3 |
P |
S |
L |
M |
|
5,6 |
140 |
140 |
204 |
204 |
125 |
125 |
40 |
40 |
12 |
12 |
392 |
442 |
М10 |
12 |
532 |
342 |
883 |
856 |
75 |
1791 |
327 |
55 |
450 |
8 |
493 |
250 |
24 |
12 |
|
6,3 |
158 |
158 |
222 |
222 |
125 |
125 |
49 |
49 |
12 |
12 |
441 |
516 |
М12 |
20 |
551 |
384 |
935 |
901 |
84 |
1404 |
362 |
64 |
373 |
8 |
511 |
235 |
24 |
12 |
|
7,1 |
178 |
178 |
242 |
242 |
125 |
125 |
59 |
59 |
12 |
12 |
497 |
572 |
М12 |
20 |
647 |
433 |
1080 |
1013 |
96 |
1633 |
408 |
76 |
439 |
8 |
634 |
280 |
28 |
14 |
|
8,0 |
200 |
200 |
269 |
265 |
125 |
125 |
72 |
70 |
12 |
12 |
560 |
650 |
М16 |
20 |
720 |
488 |
1208 |
1063 |
107 |
1490 |
460 |
87 |
327 |
8 |
656 |
150 |
28 |
14 |
|
9,0 |
225 |
225 |
289 |
289 |
125 |
125 |
82 |
82 |
12 |
12 |
630 |
720 |
М16 |
20 |
790 |
549 |
1339 |
1203 |
121 |
1680 |
518 |
102 |
365 |
8 |
685 |
165 |
28 |
14 |
|
10,0 |
250 |
250 |
324 |
324 |
81 |
81 |
81 |
81 |
16 |
14 |
700 |
790 |
М16 |
20 |
870 |
610 |
1480 |
1351 |
133 |
1910 |
575 |
112 |
435 |
8 |
705 |
215 |
36 |
18 |
|
11,2 |
280 |
280 |
354 |
354 |
89 |
89 |
89 |
89 |
16 |
14 |
784 |
874 |
М16 |
24 |
954 |
683 |
1637 |
1635 |
150 |
2316 |
644 |
130 |
554 |
8 |
874 |
260 |
36 |
18 |
|
12,5 |
313 |
313 |
386 |
386 |
94 |
94 |
94 |
94 |
16 |
14 |
875 |
965 |
М16 |
24 |
1045 |
763 |
1808 |
1661 |
167 |
2485 |
719 |
147 |
580 |
8 |
908 |
260 |
36 |
18 |
Технические
характеристики
|
№ вент. |
Наименование |
Габарит электродвигателей АИР/АИМЛ** |
N, кВт |
n, об/мин |
Ток, А |
Масса, кг |
Общий дБа |
||
|
колеса |
двигателя |
||||||||
|
3,15 |
ВР 200-20-3,15-Х*-РВВ-исп.1-0,18/1500/220-380 |
56 |
0,18 |
1500 |
0,62 |
29 |
59 |
||
|
ВР 200-20-3,15-Х*-РВВ-исп.1-0,25/1500/220-380 |
63 |
0,25 |
0,79 |
30 |
|||||
|
ВР 200-20-3,15-Х*-РВВ-исп.1-1,1/3000/220-380 |
71 |
1,1 |
3000 |
2,61 |
30 |
59 |
|||
|
ВР 200-20-3,15-Х*-РВВ-исп.1-1,5/3000/220-380 |
80 |
1,5 |
3,46 |
50 |
|||||
|
ВР 200-20-3,15-Х*-РВВ-исп.1-2,2/3000/220-380 |
80 |
2,2 |
4,85 |
42 |
|||||
|
3,55 |
ВР 200-20-3,55-Х*-РВВ-исп.1-0,25/1500/220-380 |
63 |
0,25 |
1500 |
0,79 |
31 |
60 |
||
|
ВР 200-20-3,55-Х*-РВВ-исп.1-0,37/1500/220-380 |
63 |
0,37 |
1,12 |
32 |
|||||
|
ВР 200-20-3,55-Х*-РВВ-исп.1-0,55/1500/220-380 |
71 |
0,55 |
1,57 |
35 |
|||||
|
ВР 200-20-3,55-Х*-РВВ-исп.1-2,2/3000/220-380 |
80 |
2,2 |
3000 |
4,85 |
51 |
61 |
|||
|
ВР 200-20-3,55-Х*-РВВ-исп.1-3,0/3000/220-380 |
90 |
3,0 |
6,34 |
54 |
|||||
|
ВР 200-20-3,55-Х*-РВВ-исп.1-4,0/3000/220-380 |
100 |
4,0 |
8,2 |
66 |
|||||
|
4,0 |
ВР 200-20-4,0-Х*-РВВ-исп.1-0,55/1500/220-380 |
71 |
0,55 |
1500 |
1,57 |
52 |
63 |
||
|
ВР 200-20-4,0-Х*-РВВ-исп.1-0,75/1500/220-380 |
71 |
0,75 |
2,05 |
65 |
|||||
|
ВР 200-20-4,0-Х*-РВВ-исп.1-1,1/1500/220-380 |
80 |
1,1 |
2,85 |
54,8 |
|||||
|
ВР 200-20-4,0-Х*-РВВ-исп.1-4,0/3000/220-380 |
100 |
4,0 |
3000 |
8,2 |
69,3 |
67 |
|||
|
ВР 200-20-4,0-Х*-РВВ-исп.1-5,5/3000/220-380 |
100 |
5,5 |
11,1 |
72,2 |
|||||
|
ВР 200-20-4,0-Х*-РВВ-исп.1-7,5/3000/220-380 |
112 |
7,5 |
14,9 |
112 |
|||||
|
4,5 |
ВР 200-20-4,5-Х*-РВВ-исп.1-0,75/1500/220-380 |
71 |
0,75 |
1500 |
2,05 |
55 |
67 |
||
|
ВР 200-20-4,5-Х*-РВВ-исп.1-1,1/1500/220-380 |
80 |
1,1 |
2,85 |
77 |
|||||
|
ВР 200-20-4,5-Х*-РВВ-исп.1-1,5/1500/220-380 |
80 |
1,5 |
3,72 |
86 |
|||||
|
ВР 200-20-4,5-Х*-РВВ-исп.1-7,5/3000/220-380 |
112 |
7,5 |
3000 |
14,9 |
146 |
70 |
|||
|
ВР 200-20-4,5-Х*-РВВ-исп.1-11,0/3000/380-660 |
132 |
11,0 |
21,2 |
165 |
|||||
|
ВР 200-20-4,5-Х*-РВВ-исп.1-15,0/3000/380-660 |
160 |
15,0 |
28,6 |
182 |
|||||
|
5,0 |
ВР 200-20-5,0-Х*-РВВ-исп.1-1,5/1500/220-380 |
80 |
1,5 |
1500 |
3,72 |
86 |
70 |
||
|
ВР 200-20-5,0-Х*-РВВ-исп.1-2,2/1500/220-380 |
90 |
2,2 |
5,1 |
199 |
|||||
|
ВР 200-20-5,0-Х*-РВВ-исп.1-3,0/1500/220-380 |
100 |
3,0 |
6,8 |
202 |
|||||
|
ВР 200-20-5,0-Х*-РВВ-исп.1-11,0/3000/380-660 |
132 |
11,0 |
3000 |
21,2 |
220 |
70 |
|||
|
ВР 200-20-5,0-Х*-РВВ-исп.1-15,0/3000/380-660 |
160 |
15,0 |
28,6 |
235 |
|||||
|
ВР 200-20-5,0-Х*-РВВ-исп.1-18,5/3000/380-660 |
160 |
18,5 |
34,7 |
285 |
|||||
|
5,6 |
ВР 200-20-5,6-Х*-РВВ-исп.1-2,2/1500/220-380 |
90 |
2,2 |
1500 |
5,1 |
144,2* |
74 |
||
|
ВР 200-20-5,6-Х*-РВВ-исп.3-2,2/1500/220-380 |
|||||||||
|
ВР 200-20-5,6-Х*-РВВ-исп.5(1500)-2,2/1500/220-380 |
|||||||||
|
ВР 200-20-5,6-Х*-РВВ-исп.1-3,0/1500/220-380 |
100 |
3,0 |
1500 |
6,8 |
150,5* |
74 |
|||
|
ВР 200-20-5,6-Х*-РВВ-исп.3-3,0/1500/220-380 |
|||||||||
|
ВР 200-20-5,6-Х*-РВВ-исп.5(1500)-3,0/1500/220-380 |
|||||||||
|
ВР 200-20-5,6-Х*-РВВ-исп.1-4,0/1500/220-380 |
100 |
4,0 |
1500 |
8,8 |
155,3* |
74 |
|||
|
ВР 200-20-5,6-Х*-РВВ-исп.3-4,0/1500/220-380 |
|||||||||
|
ВР 200-20-5,6-Х*-РВВ-исп.5(1500)-4,0/1500/220-380 |
|||||||||
|
ВР 200-20-5,6-Х*-РВВ-исп.5(1667)-4,0/3000/220-380 |
100 |
4,0 |
1667 |
3000 |
8,2 |
150 |
75 |
||
|
ВР 200-20-5,6-Х*-РВВ-исп.5(1667)-5,5/3000/220-380 |
100 |
5,5 |
1667 |
3000 |
11,1 |
157,4 |
|||
|
ВР 200-20-5,6-Х*-РВВ-исп.5(1875)-5,5/3000/220-380 |
100 |
5,5 |
1875 |
3000 |
11,1 |
157,4 |
|||
|
ВР 200-20-5,6-Х*-РВВ-исп.5(1875)-7,5/3000/220-380 |
112 |
7,5 |
1875 |
3000 |
14,9 |
168,7 |
|||
|
ВР 200-20-5,6-Х*-РВВ-исп.5(2143)-7,5/3000/220-380 |
112 |
7,5 |
2143 |
3000 |
14,9 |
168,7 |
|||
|
ВР 200-20-5,6-Х*-РВВ-исп.5(2143)-11,0/3000/380-660 |
132 |
11,0 |
2143 |
3000 |
21,2 |
192 |
|||
|
ВР 200-20-5,6-Х*-РВВ-исп.5(2143)-15,0/3000/380-660 |
160 |
15,0 |
2143 |
3000 |
28,6 |
226 |
|||
|
ВР 200-20-5,6-Х*-РВВ-исп.5(2400)-11,0/3000/380-660 |
132 |
11,0 |
2400 |
3000 |
21,2 |
192 |
|||
|
ВР 200-20-5,6-Х*-РВВ-исп.5(2400)-15,0/3000/380-660 |
160 |
15,0 |
2400 |
3000 |
28,6 |
226 |
|||
|
ВР 200-20-5,6-Х*-РВВ-исп.5(2400)-18,5/3000/380-660 |
160 |
18,5 |
2400 |
3000 |
34,7 |
238 |
|||
|
ВР 200-20-5,6-Х*-РВВ-исп.5(2679)-15,0/3000/380-660 |
160 |
15,0 |
2679 |
3000 |
28,6 |
226 |
|||
|
ВР 200-20-5,6-Х*-РВВ-исп.5(2679)-18,5/3000/380-660 |
160 |
18,5 |
2679 |
3000 |
34,7 |
238 |
|||
|
ВР 200-20-5,6-Х*-РВВ-исп.5(2679)-22,0/3000/380-660 |
180 |
22,0 |
2679 |
3000 |
41 |
282 |
|||
|
ВР 200-20-5,6-Х*-РВВ-исп.5(3000)-18,5/3000/380-660 |
160 |
18,5 |
3000 |
34,7 |
238 |
75 |
|||
|
ВР 200-20-5,6-Х*-РВВ-исп.5(3000)-22,0/3000/380-660 |
180 |
22,0 |
3000 |
41 |
282 |
||||
|
ВР 200-20-5,6-Х*-РВВ-исп.5(3000)-30,0/3000/380-660 |
180 |
30,0 |
3000 |
55,4 |
318 |
||||
|
ВР 200-20-5,6-Х*-РВВ-исп.5(3000)-37,0/3000/380-660 |
200 |
37,0 |
3000 |
67,9 |
353 |
||||
|
ВР 200-20-5,6-Х*-РВВ-исп.1-18,5/3000/380-660 |
160 |
18,5 |
3000 |
34,7 |
238* |
75 |
|||
|
ВР 200-20-5,6-Х*-РВВ-исп.3-18,5/3000/380-660 |
160 |
||||||||
|
ВР 200-20-5,6-Х*-РВВ-исп.1-22,0/3000/380-660 |
180 |
22,0 |
3000 |
41 |
282* |
||||
|
ВР 200-20-5,6-Х*-РВВ-исп.3-22,0/3000/380-660 |
180 |
||||||||
|
ВР 200-20-5,6-Х*-РВВ-исп.1-30,0/3000/380-660 |
180 |
30,0 |
3000 |
55,4 |
318* |
||||
|
ВР 200-20-5,6-Х*-РВВ-исп.3-30,0/3000/380-660 |
180 |
||||||||
|
ВР 200-20-5,6-Х*-РВВ-исп.1-37,0/3000/380-660 |
200 |
37,0 |
3000 |
67,9 |
353* |
||||
|
ВР 200-20-5,6-Х*-РВВ-исп.3-37,0/3000/380-660 |
200 |
||||||||
|
6,3 |
ВР 200-20-6,3-Х*-РВВ-исп.1-5,5/1500/220-380 |
112 |
5,5 |
1500 |
11,7 |
209,6* |
76 |
||
|
ВР 200-20-6,3-Х*-РВВ-исп.3-5,5/1500/220-380 |
|||||||||
|
ВР 200-20-6,3-Х*-РВВ-исп.5(1500)-5,5/1500/220-380 |
|||||||||
|
ВР 200-20-6,3-Х*-РВВ-исп.1-7,5/1500/380-660 |
132 |
7,5 |
1500 |
15,6 |
235* |
76 |
|||
|
ВР 200-20-6,3-Х*-РВВ-исп.3-7,5/1500/380-660 |
|||||||||
|
ВР 200-20-6,3-Х*-РВВ-исп.5(1500)-7,5/1500/380-660 |
|||||||||
|
ВР 200-20-6,3-Х*-РВВ-исп.5(1667)-5,5/3000/220-380 |
112 |
5,5 |
1667 |
3000 |
11,1 |
199,4 |
76 |
||
|
ВР 200-20-6,3-Х*-РВВ-исп.5(1667)-7,5/3000/220-380 |
112 |
7,5 |
1667 |
3000 |
14,9 |
210,7 |
|||
|
ВР 200-20-6,3-Х*-РВВ-исп.5(1667)-11,0/3000/380-660 |
132 |
11,0 |
1667 |
3000 |
21,2 |
234 |
|||
|
ВР 200-20-6,3-Х*-РВВ-исп.5(1875)-11,0/3000/380-660 |
132 |
11,0 |
1875 |
3000 |
21,2 |
234 |
|||
|
ВР 200-20-6,3-Х*-РВВ-исп.5(1875)-15,0/3000/380-660 |
160 |
15,0 |
1875 |
3000 |
28,6 |
268 |
|||
|
ВР 200-20-6,3-Х*-РВВ-исп.5(2143)-15,0/3000/380-660 |
160 |
15,0 |
2143 |
3000 |
28,6 |
268 |
|||
|
ВР 200-20-6,3-Х*-РВВ-исп.5(2143)-18,5/3000/380-660 |
160 |
18,5 |
2143 |
3000 |
34,7 |
280 |
|||
|
ВР 200-20-6,3-Х*-РВВ-исп.5(2143)-22,0/3000/380-660 |
180 |
22,0 |
2143 |
3000 |
41 |
324 |
|||
|
ВР 200-20-6,3-Х*-РВВ-исп.5(2400)-18,5/3000/380-660 |
160 |
18,5 |
2400 |
3000 |
34,7 |
280 |
|||
|
ВР 200-20-6,3-Х*-РВВ-исп.5(2400)-22,0/3000/380-660 |
180 |
22,0 |
2400 |
3000 |
41 |
324 |
|||
|
ВР 200-20-6,3-Х*-РВВ-исп.5(2400)-30,0/3000/380-660 |
180 |
30,0 |
2400 |
3000 |
55,4 |
360 |
|||
|
ВР 200-20-6,3-Х*-РВВ-исп.5(2679)-30,0/3000/380-660 |
180 |
30,0 |
2679 |
3000 |
55,4 |
360 |
|||
|
ВР 200-20-6,3-Х*-РВВ-исп.5(2679)-37,0/3000/380-660 |
200 |
37,0 |
2679 |
3000 |
67,9 |
395 |
|||
|
ВР 200-20-6,3-Х*-РВВ-исп.5(2679)-45,0/3000/380-660 |
200 |
45,0 |
2679 |
3000 |
82,1 |
414 |
|||
|
ВР 200-20-6,3-Х*-РВВ-исп.1-37,0/3000/380-660 |
200 |
37,0 |
3000 |
67,9 |
395* |
76 |
|||
|
ВР 200-20-6,3-Х*-РВВ-исп.3-37,0/3000/380-660 |
|||||||||
|
ВР 200-20-6,3-Х*-РВВ-исп.1-45,0/3000/380-660 |
200 |
45,0 |
3000 |
82,1 |
414* |
||||
|
ВР 200-20-6,3-Х*-РВВ-исп.3-45,0/3000/380-660 |
|||||||||
|
ВР 200-20-6,3-Х*-РВВ-исп.1-55,0/3000/380-660 |
225 |
55,0 |
3000 |
100 |
484* |
||||
|
ВР 200-20-6,3-Х*-РВВ-исп.3-55,0/3000/380-660 |
|||||||||
|
ВР 200-20-6,3-Х*-РВВ-исп.1-75,0/3000/380-660 |
250 |
75,0 |
3000 |
135 |
606* |
||||
|
ВР 200-20-6,3-Х*-РВВ-исп.3-75,0/3000/380-660 |
|||||||||
|
7,1 |
ВР 200-20-7,1-Х*-РВВ-исп.1-11,0/1500/380-660 |
132 |
11,0 |
1500 |
22,5 |
324* |
77 |
||
|
ВР 200-20-7,1-Х*-РВВ-исп.3-11,0/1500/380-660 |
|||||||||
|
ВР 200-20-7,1-Х*-РВВ-исп.5(1500)-11,0/1500/380-660 |
|||||||||
|
ВР 200-20-7,1-Х*-РВВ-исп.1-15,0/1500/380-660 |
160 |
15,0 |
1500 |
30 |
363* |
77 |
|||
|
ВР 200-20-7,1-Х*-РВВ-исп.3-15,0/1500/380-660 |
|||||||||
|
ВР 200-20-7,1-Х*-РВВ-исп.5(1500)-15,0/3000/380-660 |
|||||||||
|
ВР 200-20-7,1-Х*-РВВ-исп.5(1667)-11,0/3000/380-660 |
132 |
11,0 |
1667 |
3000 |
21,2 |
311 |
78 |
||
|
ВР 200-20-7,1-Х*-РВВ-исп.5(1667)-15,0/3000/380-660 |
160 |
15,0 |
1667 |
3000 |
28,6 |
345 |
|||
|
ВР 200-20-7,1-Х*-РВВ-исп.5(1667)-18,5/3000/380-660 |
160 |
18,5 |
1667 |
3000 |
34,7 |
357 |
|||
|
ВР 200-20-7,1-Х*-РВВ-исп.5(1875)-15,0/3000/380-660 |
160 |
15,0 |
1875 |
3000 |
28,6 |
345 |
|||
|
ВР 200-20-7,1-Х*-РВВ-исп.5(1875)-18,5/3000/380-660 |
160 |
18,5 |
1875 |
3000 |
34,7 |
357 |
|||
|
ВР 200-20-7,1-Х*-РВВ-исп.5(1875)-22,0/3000/380-660 |
180 |
22,0 |
1875 |
3000 |
41 |
401 |
|||
|
ВР 200-20-7,1-Х*-РВВ-исп.5(1875)-30,0/3000/380-660 |
180 |
30,0 |
1875 |
3000 |
55,4 |
437 |
|||
|
ВР 200-20-7,1-Х*-РВВ-исп.5(2143)-22,0/3000/380-660 |
180 |
22,0 |
2143 |
3000 |
41 |
401 |
|||
|
ВР 200-20-7,1-Х*-РВВ-исп.5(2143)-30,0/3000/380-660 |
180 |
30,0 |
2143 |
3000 |
55,4 |
437 |
|||
|
ВР 200-20-7,1-Х*-РВВ-исп.5(2143)-37,0/3000/380-660 |
200 |
37,0 |
2143 |
3000 |
67,9 |
472 |
|||
|
ВР 200-20-7,1-Х*-РВВ-исп.1-75,0/3000/380-660 |
250S2 |
75,0 |
3000 |
135 |
683 |
78 |
|||
|
ВР 200-20-7,1-Х*-РВВ-исп.3-75,0/3000/380-660 |
|||||||||
|
ВР 200-20-7,1-Х*-РВВ-исп.1-90,0/3000/380-660 |
250М2 |
90,0 |
3000 |
160 |
713 |
||||
|
ВР 200-20-7,1-Х*-РВВ-исп.3-90,0/3000/380-660 |
|||||||||
|
ВР 200-20-7,1-Х*-РВВ-исп.1-110,0/3000/380-660 |
280S2 |
110,0 |
3000 |
195 |
831 |
||||
|
ВР 200-20-7,1-Х*-РВВ-исп.3-110,0/3000/380-660 |
|||||||||
|
8,0 |
ВР 200-20-8,0-Х*-РВВ-исп.1-15,0/1500/380-660 |
160 |
15,0 |
1500 |
30 |
411* |
80 |
||
|
ВР 200-20-8,0-Х*-РВВ-исп.3-15,0/1500/380-660 |
|||||||||
|
ВР 200-20-8,0-Х*-РВВ-исп.5(1500)-15,0/1500/380-660 |
|||||||||
|
ВР 200-20-8,0-Х*-РВВ-исп.1-18,5/1500/380-660 |
160 |
18,5 |
1500 |
36,3 |
431* |
80 |
|||
|
ВР 200-20-8,0-Х*-РВВ-исп.3-18,5/1500/380-660 |
|||||||||
|
ВР 200-20-8,0-Х*-РВВ-исп.5(1500)-18,5/1500/380-660 |
|||||||||
|
ВР 200-20-8,0-Х*-РВВ-исп.5(1667)-18,5/3000/380-660 |
160 |
18,5 |
1667 |
3000 |
34,7 |
405 |
81 |
||
|
ВР 200-20-8,0-Х*-РВВ-исп.5(1667)-22,0/3000/380-660 |
180 |
22,0 |
1667 |
3000 |
41 |
449 |
|||
|
ВР 200-20-8,0-Х*-РВВ-исп.5(1667)-30,0/3000/380-660 |
180 |
30,0 |
1667 |
3000 |
55,4 |
485 |
|||
|
ВР 200-20-8,0-Х*-РВВ-исп.5(1667)-37,0/3000/380-660 |
200 |
37,0 |
1667 |
3000 |
67,9 |
520 |
|||
|
9,0 |
ВР 200-20-9,0-Х*-РВВ-исп.5(1339)-18,5/1500/380-660 |
160 |
18,5 |
1339 |
1500 |
36,3 |
583 |
81 |
|
|
ВР 200-20-9,0-Х*-РВВ-исп.5(1339)-22,0/1500/380-660 |
180 |
22,0 |
1339 |
1500 |
43,2 |
603 |
|||
|
ВР 200-20-9,0-Х*-РВВ-исп.5(1339)-30,0/1500/380-660 |
180 |
30,0 |
1339 |
1500 |
57,6 |
631 |
|||
|
ВР 200-20-9,0-Х*-РВВ-исп.5(1339)-37,0/1500/380-660 |
200 |
37,0 |
1339 |
1500 |
70,2 |
701 |
|||
|
ВР 200-20-9,0-Х*-РВВ-исп.1-30,0/1500/380-660 |
180 |
30,0 |
1500 |
57,6 |
631* |
82 |
|||
|
ВР 200-20-9,0-Х*-РВВ-исп.3-30,0/1500/380-660 |
|||||||||
|
ВР 200-20-9,0-Х*-РВВ-исп.5(1500)-30,0/1500/380-660 |
|||||||||
|
ВР 200-20-9,0-Х*-РВВ-исп.1-37,0/1500/380-660 |
200 |
37,0 |
1500 |
70,2 |
701* |
82 |
|||
|
ВР 200-20-9,0-Х*-РВВ-исп.3-37,0/1500/380-660 |
|||||||||
|
ВР 200-20-9,0-Х*-РВВ-исп.5(1500)-37,0/1500/380-660 |
|||||||||
|
ВР 200-20-9,0-Х*-РВВ-исп.1-45,0/1500/380-660 |
200 |
45,0 |
1500 |
84,9 |
729* |
82 |
|||
|
ВР 200-20-9,0-Х*-РВВ-исп.3-45,0/1500/380-660 |
|||||||||
|
ВР 200-20-9,0-Х*-РВВ-исп.5(1500)-45,0/1500/380-660 |
|||||||||
|
10,0 |
ВР 200-20-10,0-Х*-РВВ-исп.1-18,5/1000/380-660 |
180 |
18,5 |
1000 |
38,6 |
866* |
69 |
||
|
ВР 200-20-10,0-Х*-РВВ-исп.3-18,5/1000/380-660 |
|||||||||
|
ВР 200-20-10,0-Х*-РВВ-исп.5(1000)-18,5/1000/380-660 |
|||||||||
|
ВР 200-20-10,0-Х*-РВВ-исп.1-22,0/1000/380-660 |
200 |
22,0 |
1000 |
44,7 |
914* |
70 |
|||
|
ВР 200-20-10,0-Х*-РВВ-исп.3-22,0/1000/380-660 |
|||||||||
|
ВР 200-20-10,0-Х*-РВВ-исп.5(1000)-22,0/1000/380-660 |
|||||||||
|
ВР 200-20-10,0-Х*-РВВ-исп.5(1071)-18,5/1500/380-660 |
160 |
18,5 |
1071 |
1500 |
36,3 |
836 |
72 |
||
|
ВР 200-20-10,0-Х*-РВВ-исп.5(1071)-22,0/1500/380-660 |
180 |
22,0 |
1071 |
1500 |
43,2 |
856 |
74 |
||
|
ВР 200-20-10,0-Х*-РВВ-исп.5(1071)-30,0/1500/380-660 |
180 |
30,0 |
1071 |
1500 |
57,6 |
884 |
76 |
||
|
ВР 200-20-10,0-Х*-РВВ-исп.5(1200)-22,0/1500/380-660 |
180 |
22,0 |
1200 |
1500 |
43,2 |
856 |
74 |
||
|
ВР 200-20-10,0-Х*-РВВ-исп.5(1200)-30,0/1500/380-660 |
180 |
30,0 |
1200 |
1500 |
57,6 |
884 |
76 |
||
|
ВР 200-20-10,0-Х*-РВВ-исп.5(1200)-37,0/1500/380-660 |
200 |
37,0 |
1200 |
1500 |
70,2 |
954 |
|||
|
ВР 200-20-10,0-Х*-РВВ-исп.5(1339)-30,0/1500/380-660 |
180 |
30,0 |
1339 |
1500 |
57,6 |
884 |
|||
|
ВР 200-20-10,0-Х*-РВВ-исп.5(1339)-37,0/1500/380-660 |
200 |
37,0 |
1339 |
1500 |
70,2 |
954 |
|||
|
ВР 200-20-10,0-Х*-РВВ-исп.5(1339)-45,0/1500/380-660 |
200 |
45,0 |
1339 |
1500 |
84,9 |
982 |
81 |
||
|
ВР 200-20-10,0-Х*-РВВ-исп.5(1339)-55,0/1500/380-660 |
225 |
55,0 |
1339 |
1500 |
103 |
1032 |
|||
|
ВР 200-20-10,0-Х*-РВВ-исп.1-45,0/1500/380-660 |
200 |
45,0 |
1500 |
84,9 |
982* |
81 |
|||
|
ВР 200-20-10,0-Х*-РВВ-исп.3-45,0/1500/380-660 |
|||||||||
|
ВР 200-20-10,0-Х*-РВВ-исп.5(1500)-45,0/1500/380-660 |
|||||||||
|
ВР 200-20-10,0-Х*-РВВ-исп.1-55,0/1500/380-660 |
225 |
55,0 |
1500 |
103 |
1032* |
81 |
|||
|
ВР 200-20-10,0-Х*-РВВ-исп.3-55,0/1500/380-660 |
|||||||||
|
ВР 200-20-10,0-Х*-РВВ-исп.5(1500)-55,0/1500/380-660 |
|||||||||
|
ВР 200-20-10,0-Х*-РВВ-исп.1-75,0/1500/380-660 |
250 |
75,0 |
1500 |
138 |
1154* |
81 |
|||
|
ВР 200-20-10,0-Х*-РВВ-исп.3-75,0/1500/380-660 |
|||||||||
|
ВР 200-20-10,0-Х*-РВВ-исп.5(1500)-75,0/1500/380-660 |
|||||||||
|
11,2 |
ВР 200-20-11,2-Х*-РВВ-исп.5(893)-18,5/1000/380-660 |
180 |
18,5 |
893 |
1000 |
38,6 |
914 |
79 |
|
|
ВР 200-20-11,2-Х*-РВВ-исп.5(893)-22,0/1000/380-660 |
200 |
22,0 |
893 |
1000 |
44,7 |
962 |
|||
|
ВР 200-20-11,2-Х*-РВВ-исп.5(893)-30,0/1000/380-660 |
200 |
30,0 |
893 |
1000 |
59,3 |
1004 |
|||
|
ВР 200-20-11,2-Х*-РВВ-исп.1-22,0/1000/380-660 |
200 |
22,0 |
1000 |
44,7 |
962* |
80 |
|||
|
ВР 200-20-11,2-Х*-РВВ-исп.3-22,0/1000/380-660 |
|||||||||
|
ВР 200-20-11,2-Х*-РВВ-исп.5(1000)-22,0/1000/380-660 |
|||||||||
|
ВР 200-20-11,2-Х*-РВВ-исп.1-30,0/1000/380-660 |
200 |
30,0 |
1000 |
59,3 |
1004* |
80 |
|||
|
ВР 200-20-11,2-Х*-РВВ-исп.3-30,0/1000/380-660 |
|||||||||
|
ВР 200-20-11,2-Х*-РВВ-исп.5(1000)-30,0/1000/380-660 |
|||||||||
|
ВР 200-20-11,2-Х*-РВВ-исп.1-37,0/1000/380-660 |
225 |
37,0 |
1000 |
71 |
1052* |
80 |
|||
|
ВР 200-20-11,2-Х*-РВВ-исп.3-37,0/1000/380-660 |
|||||||||
|
ВР 200-20-11,2-Х*-РВВ-исп.5(1000)-37,0/1000/380-660 |
|||||||||
|
ВР 200-20-11,2-Х*-РВВ-исп.1-45,0/1000/380-660 |
250 |
45,0 |
1000 |
86 |
1140* |
80 |
|||
|
ВР 200-20-11,2-Х*-РВВ-исп.3-45,0/1000/380-660 |
|||||||||
|
ВР 200-20-11,2-Х*-РВВ-исп.5(1000)-45,0/1000/380-660 |
|||||||||
|
ВР 200-20-11,2-Х*-РВВ-исп.5(1071)-30,0/1500/380-660 |
180 |
30,0 |
1071 |
1500 |
57,6 |
932 |
82 |
||
|
ВР 200-20-11,2-Х*-РВВ-исп.5(1071)-37,0/1500/380-660 |
200 |
37,0 |
1071 |
1500 |
70,2 |
1002 |
|||
|
ВР 200-20-11,2-Х*-РВВ-исп.5(1071)-45,0/1500/380-660 |
200 |
45,0 |
1071 |
1500 |
84,9 |
1030 |
|||
|
ВР 200-20-11,2-Х*-РВВ-исп.5(1071)-55,0/1500/380-660 |
225 |
55,0 |
1071 |
1500 |
103 |
1080 |
|||
|
ВР 200-20-11,2-Х*-РВВ-исп.5(1200)-37,0/1500/380-660 |
200 |
37,0 |
1200 |
1500 |
70,2 |
1002 |
84 |
||
|
ВР 200-20-11,2-Х*-РВВ-исп.5(1200)-45,0/1500/380-660 |
200 |
45,0 |
1200 |
1500 |
84,9 |
1030 |
|||
|
ВР 200-20-11,2-Х*-РВВ-исп.5(1200)-55,0/1500/380-660 |
225 |
55,0 |
1200 |
1500 |
103 |
1080 |
|||
|
ВР 200-20-11,2-Х*-РВВ-исп.1-90,0/1500/380-660 |
250 |
90,0 |
1500 |
165,5 |
1236* |
94 |
|||
|
ВР 200-20-11,2-Х*-РВВ-исп.3-90,0/1500/380-660 |
|||||||||
|
ВР 200-20-11,2-Х*-РВВ-исп.1-110,0/1500/380-660 |
280 |
110,0 |
1500 |
201 |
1376* |
94 |
|||
|
ВР 200-20-11,2-Х*-РВВ-исп.3-110,0/1500/380-660 |
|||||||||
|
ВР 200-20-11,2-Х*-РВВ-исп.1-132,0/1500/380-660 |
280 |
132,0 |
1500 |
240 |
1446* |
94 |
|||
|
ВР 200-20-11,2-Х*-РВВ-исп.3-132,0/1500/380-660 |
|||||||||
|
12,5 |
ВР 200-20-12,5-Х*-РВВ-исп.1-22,0/750/380-660 |
200 |
22,0 |
750 |
48,9 |
1342* |
84 |
||
|
ВР 200-20-12,5-Х*-РВВ-исп.3-22,0/750/380-660 |
|||||||||
|
ВР 200-20-12,5-Х*-РВВ-исп.5(750)-22,0/750/380-660 |
|||||||||
|
ВР 200-20-12,5-Х*-РВВ-исп.1-30,0/750/380-660 |
225 |
30,0 |
750 |
63 |
1429* |
84 |
|||
|
ВР 200-20-12,5-Х*-РВВ-исп.3-30,0/750/380-660 |
|||||||||
|
ВР 200-20-12,5-Х*-РВВ-исп.5(750)-30,0/750/380-660 |
|||||||||
|
ВР 200-20-12,5-Х*-РВВ-исп.5(800)-22,0/1000/380-660 |
200 |
22,0 |
800 |
1000 |
44,7 |
1329 |
85 |
||
|
ВР 200-20-12,5-Х*-РВВ-исп.5(800)-30,0/1000/380-660 |
200 |
30,0 |
800 |
1000 |
59,3 |
1371 |
|||
|
ВР 200-20-12,5-Х*-РВВ-исп.5(800)-37,0/1000/380-660 |
225 |
37,0 |
800 |
1000 |
71 |
1419 |
|||
|
ВР 200-20-12,5-Х*-РВВ-исп.5(893)-30,0/1000/380-660 |
200 |
30,0 |
893 |
1000 |
59,3 |
1371 |
89 |
||
|
ВР 200-20-12,5-Х*-РВВ-исп.5(893)-37,0/1000/380-660 |
225 |
37,0 |
893 |
1000 |
71 |
1419 |
|||
|
ВР 200-20-12,5-Х*-РВВ-исп.5(893)-45,0/1000/380-660 |
200 |
45,0 |
893 |
1000 |
59,3 |
1507 |
|||
|
ВР 200-20-12,5-Х*-РВВ-исп.5(893)-55,0/1000/380-660 |
250 |
55,0 |
893 |
1000 |
104 |
1541 |
|||
|
ВР 200-20-12,5-Х*-РВВ-исп.1-37,0/1000/380-660 |
225 |
37,0 |
1000 |
71 |
1419* |
90 |
|||
|
ВР 200-20-12,5-Х*-РВВ-исп.3-37,0/1000/380-660 |
|||||||||
|
ВР 200-20-12,5-Х*-РВВ-исп.5(1000)-37,0/1000/380-660 |
|||||||||
|
ВР 200-20-12,5-Х*-РВВ-исп.1-45,0/1000/380-660 |
250 |
45,0 |
1000 |
86 |
1507* |
90 |
|||
|
ВР 200-20-12,5-Х*-РВВ-исп.3-45,0/1000/380-660 |
|||||||||
|
ВР 200-20-12,5-Х*-РВВ-исп.5(1000)-45,0/1000/380-660 |
|||||||||
|
ВР 200-20-12,5-Х*-РВВ-исп.1-55,0/1000/380-660 |
250 |
55,0 |
1000 |
104 |
1541* |
90 |
|||
|
ВР 200-20-12,5-Х*-РВВ-исп.3-55,0/1000/380-660 |
|||||||||
|
ВР 200-20-12,5-Х*-РВВ-исп.5(1000)-55,0/1000/380-660 |
|||||||||
|
ВР 200-20-12,5-Х*-РВВ-исп.1-75,0/1000/380-660 |
280 |
75,0 |
1000 |
142 |
1693* |
90 |
|||
|
ВР 200-20-12,5-Х*-РВВ-исп.3-75,0/1000/380-660 |
|||||||||
|
ВР 200-20-12,5-Х*-РВВ-исп.5(1000)-75,0/1500/380-660 |
|||||||||
|
ВР 200-20-12,5-Х*-РВВ-исп.5(1071)-45,0/1500/380-660 |
200 |
45,0 |
1071 |
1500 |
84,9 |
1397 |
94 |
||
|
ВР 200-20-12,5-Х*-РВВ-исп.5(1071)-55,0/1500/380-660 |
225 |
55,0 |
1071 |
1500 |
103 |
1447 |
|||
|
ВР 200-20-12,5-Х*-РВВ-исп.5(1071)-75,0/1500/380-660 |
250 |
75,0 |
1071 |
1500 |
138,3 |
1569 |
|||
* В этом месте необходимо указать исполнение вентилятора: О,
Т200, К1, К1Т200, Ex1, Ex2, ExК1, Ex1Т200, ExК1Т200.
** АИМЛ для вентиляторов во взрывозащищенном исполнении
(Ex1, Ex2, ExК1, Ex1Т200, ExК1Т200).
*** Вентиляторы исполнений Ex1, Ex2, ExК1, Ex1Т200, ExК1Т200
с двигателем АИМЛ56 (0,18/1500) не изготавливаются.
**** Масса указана для исполнения 1. Массы других
исполнений предоставляются по отдельному запросу.
Электрические схемы подключения вентиляторов в сеть 380 В

* В вентиляторах с номинальным напряжением Δ/Y 380В/660В предусмотрена возможность запуска пониженным напряжением по схеме Y-Δ.
Рекомендуемая схема подключения зависит от исполнения двигателя. Для получения более подробной информации по подключению, обратитесь в отдел технической поддержки.
Не представленные в наличии модели доступны к поставке под заказ
Оповестить о поступлении
Всю необходимую информацию также можно получить по телефону «горячей линии»
+ 7 800 200 93 96или по телефону
+7 800 505 08 67 получить консультацию