Приточно-вытяжная установка с пластинчатым рекуператором и ЕС-двигателем RWN-RP-ЕСБесплатный проект
Установка вентиляционная RWN-RP предназначена для общеобменной вентиляции помещений. Компактность установки позволяет располагать её под потолком или у стены, экономя при этом пространство.
Корпус установки выполнен из оцинкованной стали и по запросу, снаружи может быть покрыт порошковой краской. Стандартно панели в исполнении Compact имеют толщину 25 мм, в исполнении Vertical 50 мм. Панели заполнены слоем теплошумоизоляции на основе негорючей минеральной ваты.
Пластинчатый рекуператор имеет алюминиевые ламели для обеспечения эффективной передачи теплоты.
Конструктивное исполнение:
Compact - воздуховоды в одной горизонтальной плоскости (подвесное исполнение)
Vertical - постаментное исполнение - патрубки расположены сверху
Classic - постаментное (двухэтажное) исполнение - патрубки расположены с торцов, воздуховоды друг над другом.
Тип корпуса:
25m - бескаркасная конструкция с изоляцией 25 мм: Установка может располагаться вне помещения при температуре не ниже -20°С. Класс защиты – IP50.
25c - каркасно-панельная конструкцию с изоляцией 25 мм: Установка должна располагаться в помещении с температурой не ниже + 5°С. Класс защиты – IP40.
50m - бескаркасная конструкция с изоляцией 50 мм: Установка может располагаться вне помещения при температуре не ниже -30°С. Класс защиты – IP50.
50c - каркасно-панельная конструкцию с изоляцией 50 мм: Установка может располагаться вне помещения при температуре не ниже -30°С. Класс защиты – IP50.
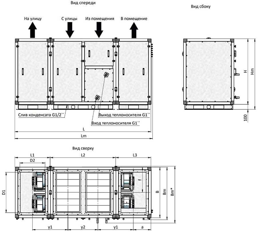
Габаритные размеры
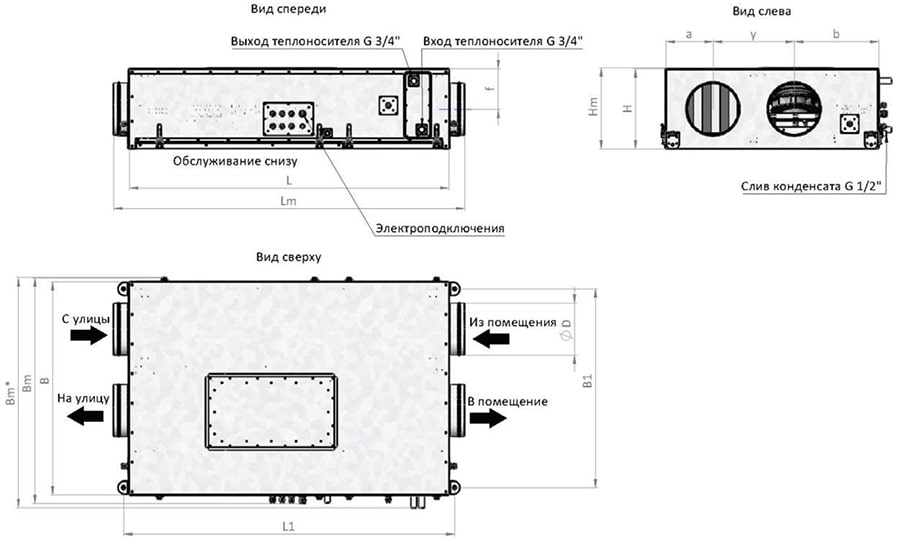
Габаритные размеры RWN-RP-100(25m)…RWN-RP-800(25m) в исполнении корпуса Compact

Размер Bm* соответствует установке с водяным нагревателем.
Bm* = Bm + 100 мм
|
Типоразмер |
L, мм |
B, мм |
H, мм |
L1, мм |
B1, мм |
a, мм |
y, мм |
b, мм |
f, мм |
D, мм |
Lm, мм |
Bm, мм |
Hm, мм |
Масса, кг |
|
100 |
1013 |
800 |
305 |
1053 |
742 |
177 |
304 |
318 |
152 |
Ø 125 |
1133 |
830 |
305 |
55 |
|
300 |
1013 |
800 |
305 |
1053 |
742 |
177 |
304 |
318 |
152 |
Ø 160 |
1133 |
830 |
305 |
60 |
|
400 |
1013 |
800 |
305 |
1053 |
742 |
177 |
304 |
318 |
152 |
Ø 200 |
1133 |
830 |
305 |
60 |
|
500 |
1226 |
816 |
308 |
1266 |
758 |
182 |
310 |
323 |
154 |
Ø 200 |
1346 |
846 |
308 |
77 |
|
600 |
1226 |
816 |
308 |
1266 |
758 |
182 |
310 |
323 |
154 |
Ø 200 |
1346 |
846 |
308 |
77 |
|
800 |
1226 |
816 |
308 |
1266 |
758 |
182 |
310 |
323 |
154 |
Ø 200 |
1346 |
846 |
308 |
78 |
Габаритные размеры RWN-RP-1000(25m)…RWN-RP-2500(25m) в исполнении корпуса Compact

Размер Bm* соответствует установке с водяным нагревателем.
Bm* = Bm + 100 мм.
|
Типоразмер |
L, мм |
B, мм |
H, мм |
L1, мм |
B1, мм |
B2, мм |
B3, мм |
a, мм |
y, мм |
s, мм |
f, мм |
b x h, мм |
Lm, мм |
Bm, мм |
Hm, мм |
Масса, кг |
|
1000 |
1626 |
1435 |
352 |
1666 |
1378 |
760 |
618 |
336 |
620 |
477 |
177 |
400x200 |
1706 |
1473 |
393 |
145 |
|
1200 |
1626 |
1435 |
352 |
1666 |
1378 |
760 |
618 |
336 |
620 |
477 |
177 |
400x200 |
1706 |
1473 |
393 |
153 |
|
1600 |
1626 |
1435 |
352 |
1666 |
1378 |
760 |
618 |
336 |
620 |
477 |
177 |
400x200 |
1706 |
1473 |
393 |
154 |
|
1800 |
1717 |
1628 |
415 |
1757 |
1571 |
856 |
715 |
385 |
717 |
526 |
208 |
500х300 |
1797 |
1666 |
452 |
203 |
|
2000 |
1717 |
1628 |
415 |
1757 |
1571 |
856 |
715 |
385 |
717 |
526 |
208 |
500х300 |
1797 |
1666 |
452 |
203 |
|
2200 |
1717 |
1628 |
415 |
1757 |
1571 |
856 |
715 |
385 |
717 |
526 |
208 |
600х300 |
1797 |
1666 |
452 |
203 |
|
2500 |
1717 |
1628 |
465 |
1757 |
1571 |
856 |
715 |
385 |
717 |
526 |
233 |
600х300 |
1797 |
1666 |
502 |
206 |
Диаметры подключения водяного теплоносителя:
|
Типоразмер |
Диаметр подключения |
|
1000-1600 |
G 3/4» |
|
1800-2500 |
G 1» |
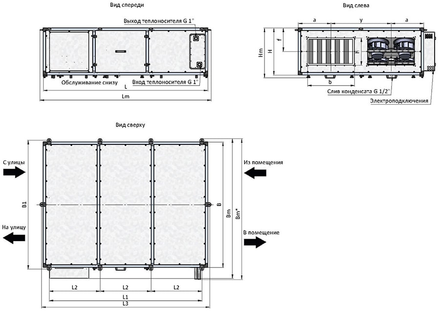
Габаритные размеры RWN-RP-2700(25c)…RWN-RP-3500(25c) в исполнении корпуса Compact

Размер Bm* соответствует установке с водяным нагревателем.
Bm* = Bm + 100 мм
|
Типоразмер |
L, мм |
B, мм |
H, мм |
L1, мм |
L2, мм |
L3, мм |
B1, мм |
a, мм |
y, мм |
f, мм |
b x h, мм |
Lm, мм |
Bm, мм |
Hm, мм |
Масса, кг |
|
2700(25c) |
1810 |
1400 |
507 |
1659 |
553 |
1854 |
1444 |
367 |
666 |
253 |
600х350 |
1894 |
1583 |
547 |
215 |
|
3000(25c) |
1810 |
1400 |
507 |
1659 |
553 |
1854 |
1444 |
367 |
666 |
253 |
600х350 |
1894 |
1583 |
547 |
215 |
|
3500(25c) |
2000 |
1400 |
600 |
1848 |
616 |
2044 |
1444 |
367 |
666 |
253 |
600х350 |
2084 |
1583 |
640 |
270 |
Габаритные размеры RWN-RP-4500(25c) в исполнении корпуса Compact

|
Типоразмер |
L, мм |
B, мм |
H, мм |
L1, мм |
L3, мм |
B1, мм |
a, мм |
y, мм |
f, мм |
b x h, мм |
Lm, мм |
Bm, мм |
Hm, мм |
Масса, кг |
|
4500 |
2584 |
1650 |
600 |
2194 |
2628 |
1694 |
430 |
790 |
300 |
700х400 |
2628 |
1833 |
640 |
350 |
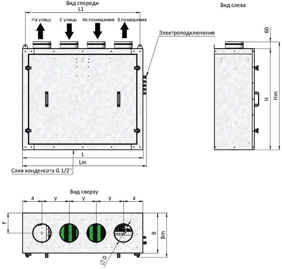
Габаритные размеры RWN-RP-100(50m)…RWN-RP-400(50m) в исполнении корпуса Vertical

|
Типоразмер |
L, мм |
B, мм |
H, мм |
L1, мм |
L2, мм |
H1, мм |
a, мм |
y, мм |
f, мм |
D, мм |
Lm, мм |
Bm, мм |
Hm, мм |
Масса, кг |
|
100 |
1068 |
355 |
896 |
1017 |
1102 |
894 |
172 |
241 |
178 |
Ø 125 |
1124 |
395 |
956 |
70 |
|
300 |
1068 |
355 |
896 |
1017 |
1102 |
894 |
172 |
241 |
178 |
Ø 160 |
1124 |
395 |
956 |
75 |
|
400 |
1068 |
355 |
896 |
1017 |
1102 |
894 |
172 |
241 |
178 |
Ø 160 |
1124 |
395 |
956 |
80 |
Габаритные размеры RWN-RP-500(50m)…RWN-RP-800(50m) в исполнении корпуса Vertical

Размер Lm* соответствует установке с водяным нагревателем.
Lm* = Lm + 115 мм.
Установка стандартно изготавливается на опорной раме высотой 100 мм.
|
Типоразмер |
L, мм |
B, мм |
H, мм |
a, мм |
y, мм |
f, мм |
D, мм |
Lm, мм |
Bm, мм |
Hm, мм |
Масса, кг |
|
500 |
1340 |
375 |
900 |
205 |
310 |
166 |
Ø 200 |
1370 |
415 |
1060 |
90 |
|
600 |
1340 |
375 |
900 |
205 |
310 |
166 |
Ø 200 |
1370 |
415 |
1060 |
90 |
|
800 |
1340 |
375 |
900 |
205 |
310 |
166 |
Ø 200 |
1370 |
415 |
1060 |
109 |
Габаритные размеры RWN-RP-1000(50m)…RWN-RP-1600(50m) в исполнении корпуса Vertical

Размер Bm* соответствует установке с водяным нагревателем.
Bm* = Bm + 100 мм.
Установка стандартно изготавливается на опорной раме высотой 100 мм.
|
Типоразмер |
L, мм |
B, мм |
H, мм |
a, мм |
y, мм |
f, мм |
D1хD2, мм |
Lm, мм |
Bm, мм |
Hm, мм |
Масса, кг |
|
1000 |
1260 |
723 |
1000 |
194 |
290 |
361 |
400x200 |
1290 |
763 |
1100 |
137 |
|
1200 |
1260 |
723 |
1000 |
194 |
290 |
361 |
400x200 |
1290 |
763 |
1100 |
145 |
|
1600 |
1260 |
723 |
1000 |
194 |
290 |
361 |
400x200 |
1290 |
763 |
1100 |
146 |
Габаритные размеры RWN-RP-1800(50c)…RWN-RP-3500(50c) в исполнении корпуса Vertical

Размер Bm* соответствует установке с водяным нагревателем.
Bm* = Bm + 100 мм.
Установка стандартно изготавливается на опорной раме высотой 100 мм.
|
Типоразмер |
L, мм |
B, мм |
H, мм |
a, мм |
y, мм |
f, мм |
D1хD2, мм |
Lm, мм |
Bm, мм |
Hm, мм |
Масса, кг |
|
1800 |
1600 |
760 |
1200 |
240 |
373 |
380 |
500x300 |
1630 |
800 |
1300 |
194 |
|
2000 |
1600 |
760 |
1200 |
240 |
373 |
380 |
500x300 |
1630 |
800 |
1300 |
195 |
|
2200 |
1600 |
760 |
1200 |
240 |
373 |
380 |
600x300 |
1630 |
800 |
1300 |
198 |
|
2500 |
1650 |
800 |
1200 |
247 |
386 |
400 |
600x300 |
1680 |
840 |
1300 |
220 |
|
2700 |
1850 |
900 |
1300 |
272 |
436 |
450 |
600x350 |
1880 |
940 |
1400 |
260 |
|
3000 |
1850 |
900 |
1300 |
272 |
436 |
450 |
600x350 |
1880 |
940 |
1400 |
260 |
|
3500 |
1850 |
900 |
1300 |
272 |
436 |
450 |
600x350 |
1880 |
940 |
1400 |
260 |
Габаритные размеры RWN-RP-4500(50c)…RWN-RP-8000(50c) в исполнении корпуса Vertical

Размер Bm* соответствует установке с водяным нагревателем.
Bm* = Bm + 100 мм.
Установка стандартно изготавливается на опорной раме высотой 100 мм.
|
Типоразмер |
L, мм |
B, мм |
H, мм |
D1хD2, мм |
L1, мм |
L2, мм |
L3, мм |
a, мм |
y1, мм |
y2, мм |
f, мм |
Lm, мм |
Bm, мм |
Hm, мм |
Масса, кг |
|
4500 |
2500 |
1000 |
1300 |
700x400 |
600 |
1300 |
600 |
300 |
650 |
600 |
500 |
2550 |
1100 |
1400 |
370 |
|
5000 |
2500 |
1000 |
1300 |
700x400 |
600 |
1300 |
600 |
300 |
650 |
600 |
500 |
2550 |
1100 |
1400 |
370 |
|
6000 |
2700 |
1000 |
1300 |
800x500 |
700 |
1300 |
700 |
350 |
703 |
594 |
500 |
2760 |
1100 |
1400 |
550 |
|
7000 |
2700 |
1200 |
1300 |
1000x500 |
700 |
1300 |
700 |
350 |
703 |
594 |
500 |
2760 |
1300 |
1400 |
600 |
|
8000 |
2700 |
1200 |
1300 |
1000x500 |
700 |
1300 |
700 |
350 |
703 |
594 |
500 |
2760 |
1300 |
1400 |
650 |
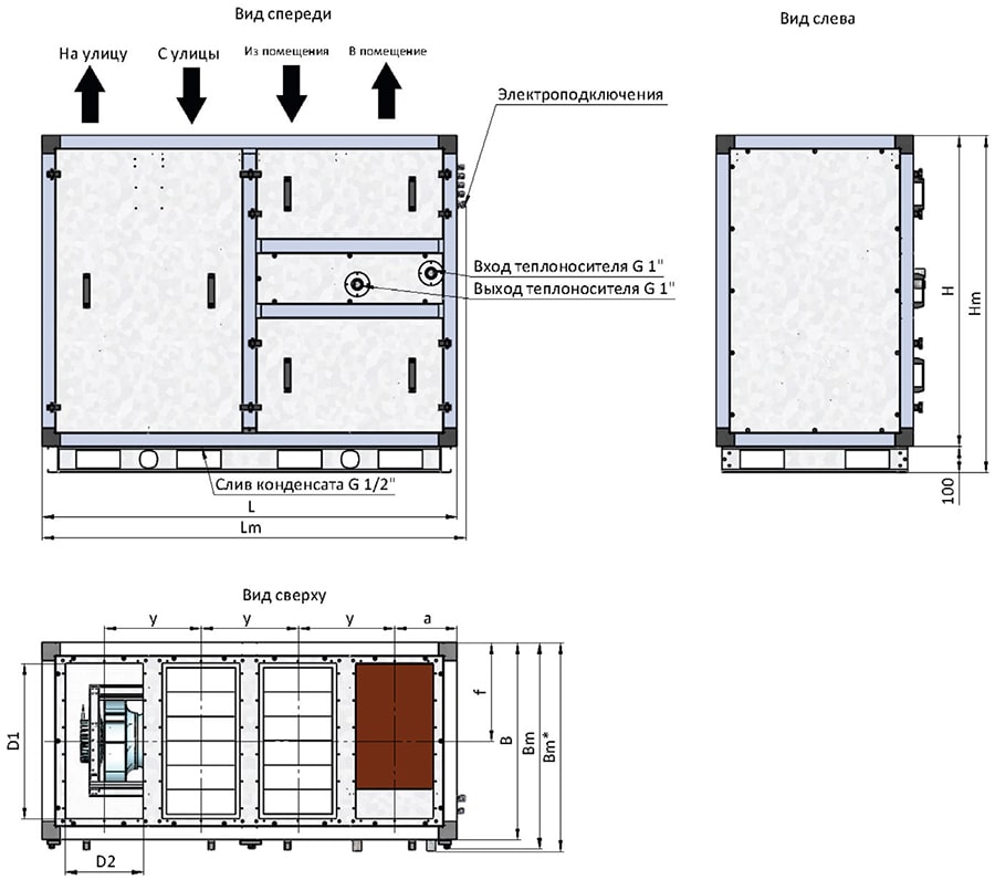
Габаритные размеры RWN-RP-100(50m)…RWN-RP-800(50m) в исполнении корпуса Classic

Установка стандартно изготавливается на опорной раме высотой
100 мм.
У установок с водяным нагревателем патрубки выходят
вперед – максимальная ширина Bm увеличивается на 100 мм за счет парубков.
|
Типоразмер |
L, мм |
B, мм |
H, мм |
a, мм |
y, мм |
f, мм |
D, мм |
Lm, мм |
Bm, мм |
Hm, мм |
Масса, кг |
|
100-400 |
990 |
418 |
700 |
194 |
311 |
209 |
Ø 160 |
1110 |
458 |
800 |
80 |
|
500-600 |
1246 |
418 |
800 |
204 |
391 |
209 |
Ø 200 |
1366 |
458 |
900 |
93 |
|
800(HE) |
1246 |
418 |
800 |
204 |
391 |
209 |
Ø 200 |
1366 |
458 |
900 |
94 |
|
800(W) |
1320 |
418 |
800 |
204 |
391 |
209 |
Ø 200 |
1440 |
458 |
900 |
94 |
Габаритные размеры RWN-RP-1000(50m)…RWN-RP-1600(50m) в исполнении корпуса Classic

Установка стандартно изготавливается на опорной раме высотой 100 мм.
У установок с водяным нагревателем патрубки выходят вперед – максимальная ширина Bm увеличивается на 100 мм за счет парубков.
|
Типоразмер |
L, мм |
B, мм |
H, мм |
a, мм |
y, мм |
f, мм |
D1хD2, мм |
Lm, мм |
Bm, мм |
Hm, мм |
Масса, кг |
|
1000(HE) |
1246 |
723 |
800 |
205 |
390 |
362 |
400х200 |
1280 |
763 |
900 |
137 |
|
1000(W) |
1350 |
723 |
800 |
205 |
390 |
362 |
400х200 |
1380 |
763 |
900 |
137 |
|
1200 |
1246 |
723 |
800 |
205 |
390 |
362 |
400х200 |
1280 |
763 |
900 |
140 |
|
1600 |
1246 |
723 |
800 |
205 |
390 |
362 |
400х200 |
1280 |
763 |
900 |
146 |
Габаритные размеры RWN-RP-1800(50c)…RWN-RP-3500(50c) в исполнении корпуса Classic

Установка стандартно изготавливается на опорной раме высотой 100 мм.
У установок с водяным нагревателем патрубки выходят вперед – максимальная ширина Bm увеличивается на 100 мм за счет парубков.
|
Типоразмер |
L, мм |
B, мм |
H, мм |
a, мм |
y, мм |
f, мм |
D1хD2, мм |
Lm, мм |
Bm, мм |
Hm, мм |
Масса, кг |
|
1800 |
1600 |
760 |
1200 |
325 |
550 |
380 |
500x300 |
1630 |
800 |
1300 |
194 |
|
2000 |
1600 |
760 |
1200 |
325 |
550 |
380 |
500x300 |
1630 |
800 |
1300 |
195 |
|
2200 |
1600 |
760 |
1200 |
325 |
550 |
380 |
600x300 |
1630 |
800 |
1300 |
198 |
|
2500 |
1650 |
800 |
1200 |
325 |
550 |
400 |
600x300 |
1680 |
840 |
1300 |
220 |
|
2700 |
1850 |
900 |
1300 |
350 |
600 |
450 |
600x350 |
1880 |
940 |
1400 |
260 |
|
3000 |
1850 |
900 |
1300 |
350 |
600 |
450 |
600x350 |
1880 |
940 |
1400 |
270 |
|
3500 |
1850 |
940 |
1300 |
350 |
600 |
450 |
600x350 |
1880 |
980 |
1400 |
270 |
Габаритные размеры RWN-RP-4500(50c)…RWN-RP-8000(50c) в исполнении корпуса Classic

Размер Bm* соответствует установке с водяным нагревателем.
Bm* = Bm + 100 мм.
Установка стандартно изготавливается на опорной раме
высотой 100 мм.
|
Типоразмер |
L, мм |
B, мм |
H, мм |
D1хD2, мм |
L1, мм |
L2, мм |
L3, мм |
a, мм |
y, мм |
f, мм |
Lm, мм |
Bm, мм |
Hm, мм |
Масса, кг |
|
4500 |
2240 |
1000 |
1300 |
700x400 |
620 |
1000 |
620 |
350 |
600 |
460 |
2290 |
1100 |
1500 |
370 |
|
5000 |
2240 |
1000 |
1400 |
700x400 |
620 |
1000 |
620 |
350 |
600 |
460 |
2290 |
1100 |
1500 |
370 |
|
6000 |
2700 |
1000 |
1400 |
800x500 |
700 |
1300 |
700 |
353 |
694 |
500 |
2760 |
1100 |
1500 |
550 |
|
7000 |
2700 |
1200 |
1400 |
1000x500 |
700 |
1300 |
700 |
353 |
693 |
600 |
2760 |
1300 |
1500 |
600 |
|
8000 |
2700 |
1200 |
1400 |
1000x500 |
700 |
1300 |
700 |
353 |
693 |
600 |
2760 |
1300 |
1500 |
650 |
Технические характеристики
|
Модель и типоразмер |
Расход воздуха, м3/ч |
Площадь помещения, м2 |
Напряжение, В |
Вентиляторы |
Мощность ТЭНа, кВт |
Ток ТЭНа (на фазу), А |
Уровень шума Lp, дБ(A) |
|
|
Мощность, кВт |
Ток, А |
|||||||
|
RWN-RP-100-ЕС-НЕ0,4 |
100 |
40 |
1~220 |
0,17 |
0,8 |
0,4 |
2,6 |
38,2 |
|
RWN-RP-300-ЕС-НЕ1,5 |
300 |
120 |
1~220 |
0,34 |
2,0 |
1,5 |
10,5 |
39,8 |
|
RWN-RP-400-ЕС-НЕ2,3 |
400 |
160 |
1~220 |
0,34 |
2,0 |
2,3 |
15,8 |
39,8 |
|
RWN-RP-500-ЕС-НЕ2,6 |
500 |
200 |
1~220 |
0,34 |
2,0 |
2,6 |
15,8 |
39,8 |
|
RWN-RP-600-ЕС-НЕ3 |
600 |
240 |
1~220 |
0,46 |
2,2 |
3,0 |
21,0 |
43,0 |
|
RWN-RP-800-ЕС-НЕ4,5 |
800 |
320 |
3~380 |
0,46 |
2,2 |
4,5 |
10,5 |
43,0 |
|
RWN-RP-800-ЕС-W |
800 |
320 |
1~220 |
0,46 |
2,2 |
- |
- |
43,0 |
|
RWN-RP-1000-ЕС-НЕ6 |
1 000 |
400 |
3~380 |
0,68 |
4,0 |
6,0 |
15,8 |
42,8 |
|
RWN-RP-1000-ЕС-W |
1 000 |
400 |
1~220 |
0,68 |
4,0 |
- |
- |
42,8 |
|
RWN-RP-1200-ЕС-НЕ7,5 |
1 200 |
480 |
3~380 |
0,92 |
4,4 |
7,5 |
15,8 |
46,0 |
|
RWN-RP-1200-ЕС-W |
1 200 |
480 |
1~220 |
0,92 |
4,4 |
- |
- |
46,0 |
|
RWN-RP-1600-ЕС-НЕ11 |
1 600 |
640 |
3~380 |
0,92 |
4,4 |
11,0 |
21,0 |
46,0 |
|
RWN-RP-1600-ЕС-W |
1 600 |
640 |
1~220 |
0,92 |
4,4 |
- |
- |
46,0 |
|
RWN-RP-1800-ЕС-НЕ12 |
1 800 |
720 |
3~380 |
0,98 |
4,1 |
12,0 |
31,5 |
42,5 |
|
RWN-RP-1800-ЕС-W |
1 800 |
720 |
1~220 |
0,98 |
4,1 |
- |
- |
42,5 |
|
RWN-RP-2000-ЕС-НЕ13 |
2 000 |
800 |
3~380 |
1,18 |
4,2 |
13,0 |
31,5 |
42,5 |
|
RWN-RP-2000-ЕС-W |
2 000 |
800 |
1~220 |
1,18 |
4,2 |
- |
- |
42,5 |
|
RWN-RP-2200-ЕС-НЕ14 |
2 200 |
880 |
3~380 |
1,40 |
6,2 |
14,0 |
31,5 |
45,8 |
|
RWN-RP-2200-ЕС-W |
2 200 |
880 |
1~220 |
1,40 |
6,2 |
- |
- |
45,8 |
|
RWN-RP-2500-ЕС-НЕ15 |
2 500 |
1 000 |
3~380 |
1,40 |
6,2 |
15,0 |
31,5 |
45,8 |
|
RWN-RP-2500-ЕС-W |
2 500 |
1 000 |
1~220 |
1,40 |
6,2 |
- |
- |
45,8 |
|
RWN-RP-2700-ЕС-НЕ15 |
2 700 |
1 080 |
3~380 |
1,40 |
6,2 |
15,0 |
31,5 |
45,8 |
|
RWN-RP-2700-ЕС-W |
2 700 |
1 080 |
1~220 |
1,40 |
6,2 |
- |
- |
45,8 |
|
RWN-RP-3000-ЕС-НЕ17 |
3 000 |
1 200 |
3~380 |
2,20 |
3,2 |
17,0 |
42,0 |
46,7 |
|
RWN-RP-3000-ЕС-W |
3 000 |
1 200 |
3~380 |
2,20 |
3,2 |
- |
- |
46,7 |
|
RWN-RP-3500-ЕС-НЕ21 |
3 500 |
1 400 |
3~380 |
2,20 |
3,2 |
21,0 |
42,0 |
46,7 |
|
RWN-RP-3500-ЕС-W |
3 500 |
1 400 |
3~380 |
2,20 |
3,2 |
- |
- |
46,7 |
|
RWN-RP-4500-ЕС-НЕ27 |
4 500 |
1 800 |
3~380 |
2,20 |
3,2 |
27,0 |
52,5 |
46,7 |
|
RWN-RP-4500-ЕС-W |
4 500 |
1 800 |
3~380 |
2,20 |
3,2 |
- |
- |
46,7 |
|
RWN-RP-5000-ЕС-НЕ30 |
5 000 |
2 000 |
3~380 |
2,80 |
12,4 |
30,0 |
63,0 |
48,8 |
|
RWN-RP-5000-ЕС-W |
5 000 |
2 000 |
1~220 |
2,80 |
12,4 |
- |
- |
48,8 |
|
RWN-RP-6000-ЕС(B355)-НЕ38 |
6 000 |
2 400 |
3~380 |
4,40 |
6,4 |
38,0 |
73,5 |
49,7 |
|
RWN-RP-6000-ЕС(B355)-W |
6 000 |
2 400 |
3~380 |
4,40 |
6,4 |
- |
- |
49,7 |
|
RWN-RP-6000-ЕС(B500)-НЕ38 |
6 000 |
2 400 |
3~380 |
8,60 |
15,6 |
38,0 |
73,5 |
53,1 |
|
RWN-RP-6000-ЕС(B500)-W |
6 000 |
2 400 |
3~380 |
8,60 |
15,6 |
- |
- |
53,1 |
|
RWN-RP-6000-ЕС(L400)-W |
6 000 |
2 400 |
3~380 |
6,62 |
8,4 |
- |
- |
49,3 |
|
RWN-RP-7000-ЕС(B500)-НЕ45 |
7 000 |
2 800 |
3~380 |
8,60 |
15,6 |
45,0 |
84,0 |
53,1 |
|
RWN-RP-7000-ЕС(B500)-W |
7 000 |
2 800 |
3~380 |
8,60 |
15,6 |
- |
- |
53,1 |
|
RWN-RP-7000-ЕС(L400)-W |
7 000 |
2 800 |
3~380 |
6,62 |
8,4 |
- |
- |
49,3 |
|
RWN-RP-8000-ЕС(B500)-НЕ53 |
8 000 |
3 200 |
3~380 |
8,60 |
15,6 |
53,0 |
105,0 |
53,1 |
|
RWN-RP-8000-ЕС(B500)-W |
8 000 |
3 200 |
3~380 |
8,60 |
15,6 |
- |
- |
53,1 |
|
RWN-RP-8000-ЕС(L400)-W |
8 000 |
3 200 |
3~380 |
6,62 |
8,4 |
- |
- |
49,3 |
Аэродинамические
характеристики установок

Условное обозначение
Установка приточно-вытяжная с роторным рекуператором
RWN-RR-400(25m)-ЕС-НЕ0,8-Compact(N)
где: RWN-RR - модель установки;
400 - типоразмер установки;
25m - толщина изоляции и тип корпуса;
ЕC - тип электродвигателя (может содержать индекс мотор-колеса,
например, ЕС(B500);
HE - электрический нагреватель (W - водяной нагреватель);
0,8 - мощность электрического нагревателя, кВт;
Classic - исполнение установки: Vertical, Compact или Classic;
N - тип пульта управления.
Не представленные в наличии модели доступны к поставке под заказ
Оповестить о поступлении
Всю необходимую информацию также можно получить по телефону «горячей линии»
+ 7 800 200 93 96или по телефону
+7 800 505 08 67 получить консультацию
