Вентилятор радиальный ВР-80-75 общепромышленного исполнения
Описание
- Классические радиальные вентиляторы низкого давления
- Предназначены для общеобменной вентиляции
Конструктив
- Корпус в виде улитки из оцинкованной стали
- Углы поворота корпуса: 0°, 45°, 90°, 135°, 270°, 315°
- Левое (Л) или правое (Пр) направление вращения рабочего колеса/положение корпуса
- Тип рабочего колеса «РН» с загнутыми назад лопатками
- Рабочее колесо из углеродистой стали с покрытием
Двигатель
- Трехфазный асинхронный электродвигатель
- Степень защиты электродвигателя не ниже IP 54
Условия эксплуатации
- Климатическое исполнение по ГОСТ 15150-69: У2 (для эксплуатации под навесом). Допускается эксплуатация в У1 (на открытом воздухе) при комплектации кожухом электродвигателя или двигателем У1
- Температура окружающей среды от -45°С до +40°С
- Общепромышленное (О) исполнение
- Температура перемещаемой среды от -45°С до +80°С
- Перемещаемая среда не должна содержать:
- пары и газы с агрессивностью к металлам, покрытиям и изоляции выше агрессивности воздуха
Дополнительная комплектация

1 - Вставка гибкая круглая ВГК-ВР/ВЦ
2 - Вставка гибкая прямоугольная ВГП-ВР/ВЦ
3 - Козырёк защитный Козырек-ВР/ВЦ
4 - Решетка защитная БАСКЕТ-ВР/ВЦ
5 - Клапан вертикального выброса КВВ-ВР/ВЦ
6 - Кожух ЭД-ВР/ВЦ
7 - Виброизоляторы
* Дополнительные комплектующие в комплект поставки не входят.
Полная информация о вентиляторах ВР-80-75 в электронном pdf-каталоге по ссылке во вкладке "Характеристики".
Вентиляторы ВР-80-75 специального назначения можно посмотреть в соответствующем разделе.
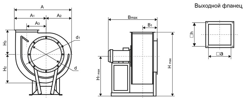
Габаритные и присоединительные размеры

|
№ |
Габарит |
A* |
А1 |
А2 |
А3 |
В max |
В1 |
H** max |
H1 |
Н2 |
H3 |
d |
d1 |
a |
h |
|||||
|
0° |
45° |
90°, 270° |
135°, 315° |
0° |
45° |
90° |
||||||||||||||
|
ВР-80-75-2,5 |
56 |
460 |
410 |
427 |
542 |
271 |
189 |
163 |
510 |
177 |
509 |
640 |
576 |
306 |
224 |
203 |
250 |
289 |
175 |
194 |
|
63 |
460 |
410 |
427 |
542 |
271 |
189 |
163 |
510 |
177 |
516 |
647 |
583 |
313 |
224 |
203 |
250 |
289 |
175 |
194 |
|
|
71 |
460 |
410 |
427 |
542 |
271 |
189 |
163 |
510 |
177 |
524 |
655 |
591 |
321 |
224 |
203 |
250 |
289 |
175 |
194 |
|
|
ВР-80-75-3,15 |
63 |
573 |
514 |
520 |
664 |
336 |
237 |
205 |
552 |
202 |
627 |
792 |
718 |
403 |
278 |
244 |
315 |
349 |
220 |
240 |
|
80 |
573 |
514 |
520 |
664 |
336 |
237 |
205 |
596 |
202 |
644 |
809 |
735 |
420 |
278 |
244 |
315 |
349 |
220 |
240 |
|
|
ВР-80-75-4,0 |
63 |
720 |
656 |
650 |
834 |
419 |
301 |
258 |
659 |
232 |
766 |
974 |
889 |
469 |
358 |
297 |
400 |
434 |
280 |
300 |
|
71 |
720 |
656 |
650 |
834 |
419 |
301 |
258 |
659 |
232 |
774 |
982 |
897 |
477 |
358 |
297 |
400 |
434 |
280 |
300 |
|
|
80 |
720 |
656 |
650 |
834 |
419 |
301 |
258 |
659 |
232 |
783 |
991 |
906 |
486 |
358 |
297 |
400 |
434 |
280 |
300 |
|
|
100 |
720 |
656 |
650 |
834 |
419 |
301 |
258 |
722 |
232 |
803 |
1010 |
926 |
506 |
358 |
297 |
400 |
434 |
280 |
300 |
|
|
112 |
720 |
656 |
650 |
834 |
419 |
301 |
258 |
739 |
232 |
815 |
1022 |
938 |
518 |
358 |
297 |
400 |
434 |
280 |
300 |
|
|
ВР-80-75-5,0 |
71 |
897 |
818 |
798 |
1037 |
521 |
376 |
326 |
769 |
269 |
930 |
1180 |
1091 |
571 |
440 |
359 |
500 |
534 |
350 |
379 |
|
80 |
897 |
818 |
798 |
1037 |
521 |
376 |
326 |
769 |
269 |
939 |
1189 |
1100 |
580 |
440 |
359 |
500 |
534 |
350 |
379 |
|
|
90 |
897 |
818 |
798 |
1037 |
521 |
376 |
326 |
771 |
269 |
949 |
1199 |
1110 |
590 |
440 |
359 |
500 |
534 |
350 |
379 |
|
|
100 |
897 |
818 |
798 |
1037 |
521 |
376 |
326 |
781 |
269 |
959 |
1209 |
1120 |
600 |
440 |
359 |
500 |
534 |
350 |
379 |
|
|
ВР-80-75-6,3 |
100 |
1123 |
1026 |
993 |
1288 |
647 |
476 |
409 |
1061 |
343 |
1164 |
1503 |
1383 |
723 |
554 |
441 |
630 |
665 |
441 |
470 |
|
112 |
1123 |
1026 |
993 |
1288 |
647 |
476 |
409 |
1073 |
343 |
1153 |
1483 |
1372 |
712 |
554 |
441 |
630 |
665 |
441 |
470 |
|
|
132 |
1123 |
1026 |
993 |
1288 |
647 |
476 |
409 |
1093 |
343 |
1173 |
1510 |
1392 |
732 |
554 |
441 |
630 |
665 |
441 |
470 |
|
* Размер, зависящий от положения корпуса вентилятора.
** Максимальная высота при различных положениях корпуса вентилятора (0°, 45°, 90°).
Габаритные размеры Bmax и H1max соответственно зависят от устанавливаемого двигателя. Габаритный размер Hmax зависит от положения корпуса и устанавливаемого двигателя.
Оборудование с большей производительностью и в больших типоразмерах представлено в разделах ВРН и ВРВ.
Габаритные и присоединительные размеры основания рамы вентиляторов ВР-80-75

|
№ вентилятора |
Габарит электродвигателя |
А |
В |
C |
D |
Е |
F |
K |
L |
M |
n |
|
ВР-80-75-2,5 |
56-71 |
418 |
292 |
316 |
- |
- |
20 |
90 |
30 |
8,5 |
8 |
|
ВР-80-75-3,15 |
63-80 |
445 |
254 |
278 |
- |
- |
20 |
90 |
30 |
9 |
8 |
|
ВР-80-75-4,0 |
63-112 |
570 |
290 |
314 |
- |
- |
20 |
163 |
30 |
8,5 |
8 |
|
ВР-80-75-5,0 |
71-100 |
714 |
385 |
435 |
10 |
240 |
100 |
240 |
- |
- |
6 |
|
ВР-80-75-6,3 |
100-132 |
854 |
486 |
546 |
10 |
325 |
100 |
325 |
- |
- |
6 |
Технические характеристики
|
Наименование |
Габарит электродвигателя |
N, кВт |
n, об/мин |
Ток при 380В, А |
Масса max, кг |
Виброопора тип ЕС (А) |
|
|
Кол-во |
Тип |
||||||
|
ВР-80-75-2,5-О-РН-0,12/1500/220-380 |
56 |
0,12 |
1310 |
0,49 |
15,1 |
4 |
20*25(А) М6 |
|
ВР-80-75-2,5-О-РН-0,18/1500/220-380 |
56 |
0,18 |
1310 |
0,67 |
14,9 |
4 |
20*25(А) М6 |
|
ВР-80-75-2,5-О-РН-0,25/1500/220-380 |
63 |
0,25 |
1340 |
0,87 |
16,3 |
4 |
20*25(А) М6 |
|
ВР-80-75-2,5-О-РН-0,55/3000/220-380 |
63 |
0,55 |
2790 |
1,38 |
18,7 |
4 |
20*25(А) М6 |
|
ВР-80-75-2,5-О-РН-0,75/3000/220-380 |
71 |
0,75 |
2840 |
1,83 |
19,7 |
4 |
20*25(А) М6 |
|
ВР-80-75-3,15-О-РН-0,25/1500/220-380 |
63 |
0,25 |
1340 |
0,87 |
25,7 |
4 |
20*25(А) М6 |
|
ВР-80-75-3,15-О-РН-0,37/1500/220-380 |
63 |
0,37 |
1340 |
1,18 |
26,4 |
4 |
20*25(А) М6 |
|
ВР-80-75-3,15-О-РН-1,5/3000/220-380 |
80 |
1,5 |
2850 |
3,46 |
35,1 |
4 |
20*25(А) М6 |
|
ВР-80-75-3,15-О-РН-2,2/3000/220-380 |
80 |
2,2 |
2855 |
4,85 |
39,1 |
4 |
20*25(А) М6 |
|
ВР-80-75-4,0-О-РН-0,25/1000/220-380 |
63 |
0,25 |
870 |
1,04 |
40,8 |
4 |
20*25(А) М6 |
|
ВР-80-75-4,0-О-РН-0,37/1000/220-380 |
71 |
0,37 |
880 |
1,39 |
44,0 |
4 |
20*25(А) М6 |
|
ВР-80-75-4,0-О-РН-0,75/1500/220-380 |
71 |
0,75 |
1390 |
2,11 |
44,3 |
4 |
20*25(А) М6 |
|
ВР-80-75-4,0-О-РН-1,1/1500/220-380 |
80 |
1,1 |
1390 |
2,85 |
48,4 |
4 |
20*25(А) М6 |
|
ВР-80-75-4,0-О-РН-5,5/3000/220-380 |
100 |
5,5 |
2900 |
11,1 |
69,2 |
6 |
20*25(А) М6 |
|
ВР-80-75-4,0-О-РН-7,5/3000/220-380 |
112 |
7,5 |
2895 |
14,9 |
77,7 |
6 |
20*15(А) М6 |
|
ВР-80-75-5,0-О-РН-0,55/1000/220-380 |
71 |
0,55 |
880 |
1,79 |
66,6 |
6 |
20*25(А) М6 |
|
ВР-80-75-5,0-О-РН-0,75/1000/220-380 |
80 |
0,75 |
905 |
2,3 |
70 |
6 |
20*25(А) М6 |
|
ВР-80-75-5,0-О-РН-2,2/1500/220-380 |
90 |
2,2 |
1410 |
5,3 |
87,3 |
6 |
20*15(А) М6 |
|
ВР-80-75-5,0-О-РН-3,0/1500/220-380 |
100 |
3,0 |
1410 |
6,8 |
88,3 |
6 |
20*15(А) М6 |
|
ВР-80-75-6,3-О-РН-2,2/1000/220-380 |
100 |
2,2 |
935 |
5,6 |
120 |
6 |
25*20(А) М6 |
|
ВР-80-75-6,3-О-РН-3,0/1000/220-380 |
112 |
3,0 |
960 |
7,64 |
135 |
6 |
25*20(А) М6 |
|
ВР-80-75-6,3-О-РН-5,5/1500/220-380 |
112 |
5,5 |
1440 |
11,7 |
140 |
6 |
25*20(А) М6 |
|
ВР-80-75-6,3-О-РН-7,5/1500/380-660 |
132 |
7,5 |
1450 |
15,71 |
162,5 |
6 |
30*30(А) М8 |
Шумовые характеристики
|
Наименование |
Уровень звуковой мощности, дБ в октавных полосах частот, Гц |
Общий, дБа |
|||||||
|
63 |
125 |
250 |
500 |
1000 |
2000 |
4000 |
8000 |
||
|
ВР-80-75-2,5-О-РН-0,12/1500/220-380 |
51 |
56 |
63 |
57 |
54 |
50 |
47 |
43 |
66 |
|
ВР-80-75-2,5-О-РН-0,18/1500/220-380 |
51 |
56 |
63 |
57 |
54 |
50 |
47 |
43 |
66 |
|
ВР-80-75-2,5-О-РН-0,25/1500/220-380 |
51 |
56 |
63 |
57 |
54 |
50 |
47 |
43 |
66 |
|
ВР-80-75-2,5-О-РН-0,55/3000/220-380 |
70 |
75 |
82 |
76 |
73 |
69 |
66 |
62 |
85 |
|
ВР-80-75-2,5-О-РН-0,75/3000/220-380 |
70 |
75 |
82 |
76 |
73 |
69 |
66 |
62 |
85 |
|
ВР-80-75-3,15-О-РН-0,25/1500/220-380 |
60 |
65 |
72 |
66 |
63 |
59 |
56 |
52 |
75 |
|
ВР-80-75-3,15-О-РН-0,37/1500/220-380 |
60 |
65 |
72 |
66 |
63 |
59 |
56 |
52 |
75 |
|
ВР-80-75-3,15-О-РН-1,5/3000/220-380 |
80 |
85 |
92 |
86 |
83 |
79 |
76 |
72 |
95 |
|
ВР-80-75-3,15-О-РН-2,2/3000/220-380 |
80 |
85 |
92 |
86 |
83 |
79 |
76 |
72 |
95 |
|
ВР-80-75-4,0-О-РН-0,25/1000/220-380 |
58 |
63 |
70 |
64 |
61 |
57 |
54 |
50 |
73 |
|
ВР-80-75-4,0-О-РН-0,37/1000/220-380 |
58 |
63 |
70 |
64 |
61 |
57 |
54 |
50 |
73 |
|
ВР-80-75-4,0-О-РН-0,75/1500/220-380 |
70 |
74 |
81 |
75 |
73 |
69 |
66 |
61 |
84 |
|
ВР-80-75-4,0-О-РН-1,1/1500/220-380 |
70 |
74 |
81 |
75 |
73 |
69 |
66 |
61 |
84 |
|
ВР-80-75-4,0-О-РН-5,5/3000/220-380 |
89 |
93 |
100 |
94 |
92 |
88 |
85 |
80 |
103 |
|
ВР-80-75-4,0-О-РН-7,5/3000/220-380 |
89 |
93 |
100 |
94 |
92 |
88 |
85 |
80 |
103 |
|
ВР-80-75-5,0-О-РН-0,55/1000/220-380 |
66 |
71 |
78 |
72 |
69 |
65 |
62 |
58 |
81 |
|
ВР-80-75-5,0-О-РН-0,75/1000/220-380 |
66 |
71 |
78 |
72 |
69 |
65 |
62 |
58 |
81 |
|
ВР-80-75-5,0-О-РН-2,2/1500/220-380 |
78 |
82 |
89 |
83 |
81 |
77 |
74 |
69 |
92 |
|
ВР-80-75-5,0-О-РН-3,0/1500/220-380 |
78 |
82 |
89 |
83 |
81 |
77 |
74 |
69 |
92 |
|
ВР-80-75-6,3-О-РН-2,2/1000/220-380 |
75 |
80 |
87 |
81 |
78 |
74 |
71 |
67 |
90 |
|
ВР-80-75-6,3-О-РН-3/1000/220-380 |
75 |
80 |
87 |
81 |
78 |
74 |
71 |
67 |
90 |
|
ВР-80-75-6,3-О-РН-5,5/1500/220-380 |
87 |
91 |
98 |
92 |
90 |
86 |
83 |
78 |
101 |
|
ВР-80-75-6,3-О-РН-7,5/1500/380-660 |
87 |
91 |
98 |
92 |
90 |
86 |
83 |
78 |
101 |
Электрические схемы подключения вентиляторов в сеть 380 В

* В вентиляторах с номинальным напряжением ∆/Y 380В/660В предусмотрена возможность запуска пониженным напряжением по схеме Y-∆. Для получения более подробной информации по подключению, обратитесь в отдел технической поддержки.
Не представленные в наличии модели доступны к поставке под заказ
Оповестить о поступлении
Всю необходимую информацию также можно получить по телефону «горячей линии»
+ 7 800 200 93 96или по телефону
+7 800 505 08 67 получить консультацию
