Каталог товаров

Вставка гибкая ВГ 80-50 ш20-ш20

Код: РВЗ00284071
Нет в наличии
Страна происхождения
РОССИЯ
Единица измерения
шт
Вес (кг)
3.889
Описание товара
Характеристики
Руководства
Описание товара

Вставки гибкие типа ВГ предназначены для предотвращения передачи вибрации от вентилятора к воздуховоду и применяются в вентиляционных системах, перемещающих воздух в интервалах температур от -40°С до +80°С.

Корпус вставки изготовлен из оцинкованной стали, в середине закреплена тканевая лента, обеспечивающая герметичность канала. Конструкция вставки позволяет крепить её к фланцам вентиляторов с помощью болтов или реечного соединения. 


Характеристики товара

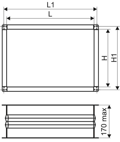
Габаритные и присоединительные размеры для канальных вентиляторов, систем вентиляции и кондиционирования прямоугольного сечения

ВГП-ВРП.jpg

Типоразмер

вентилятора

Модель

гибкой вставки

L

H

L1

H1

Фланец из шины

80-50

ВГ 80-50

800

500

820

520

20

Руководства товара
Руководство вставки гибкие.pdf