Клапан дымоудаления ДМУ с электромагнитным приводом
Клапан дымоудаления предназначен для открывания проемов вытяжных систем аварийной противодымной вентиляции. Клапан устанавливается в проемах стен, перекрытий, подвесных потолков, а также в торце воздуховодов.
Клапан ДМУ (далее клапан) используется в качестве клапана дымоудаления с нормально закрытой заслонкой.
Клапан предназначен для открывания проемов вытяжных систем аварийной противодымной вентиляции.
Применение клапана осуществляется в соответствии с требованиями СП 60.13330.2012, CП 7.13130.2013, ГОСТ Р 53301-2013 и действующими территориальными строительными нормами.
Вид климатического исполнения и категория размещения - УЗ по ГОСТ 15150-69. Клапан не подлежит установке в помещениях категорий А и Б по взрывопожароопасности, в системах вентиляции и местах отсоса взрывопожароопасных и агрессивных сред, а также в системах, не подвергающихся очистке от горючих отложений.
Пределы огнестойкости клапана ДМУ – E90.
Режим работы клапана ДМУ – нормально закрытый (НЗ).
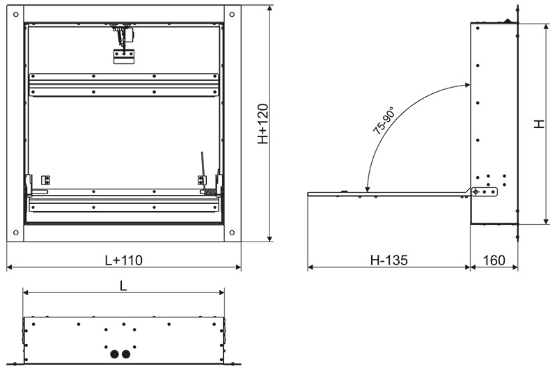
Угол наклона заслонки – 75-90°.
Клапан ДМУ изготавливается из оцинкованной стали и комплектуется электромагнитным (ЭМ) приводом.
Габаритные и присоединительные размеры (мм)

Минимальный размер клапана (L*H) - 300*300 мм, далее с шагом 50 мм в соответствии с таблицами типоразмерного ряда и значения площади живого сечения клапанов ДМУ.
Максимальный размер (L*H) - 2000*1400 мм.
Способы управления заслонкой клапана ДМУ
|
Тип привода |
Принцип срабатывания привода |
Механизм перевода заслонки |
Способ перевода заслонки |
||
|
В рабочее положение |
В исходное положение |
Из рабочего положения в исходное (многократное использование) |
Из исходного положения в рабочее |
||
|
ЭМ |
Подача напряжения на электромагнит* |
возвратная пружина |
- |
вручную |
автоматический, по сигналам пожарной автоматики; дистанционный с пульта управления; от кнопки/тумблера в месте установки клапана |
* Режим работы кратковременный, не более 1 минуты во включенном состоянии.
Расположение электромагнитного электропривода (ЭМ) – по длине клапана (L).
Длина (L) цельного клапана должна быть больше высоты (H).

Схемы установки клапанов

Стрелками показано направление удаления продуктов горения через клапан.
Примечание: Клапаны с электромагнитными (ЭМ) приводами устанавливаются исключительно в вертикальной плоскости.
Коэффициент местного сопротивления клапанов ДМУ

Клапаны ДМУ в виде кассет с электромагнитным (ЭМ) приводом

Характеристики электромагнитного (ЭМ) привода
|
Характеристика |
Электромагнитный |
|
|
Время поворота, с, не более |
2 |
|
|
Крутящий момент, Нм |
- |
|
|
Напряжение электропитания привода, В |
24/220 |
|
|
Потребляемая мощность, Вт |
во время вращения |
70 |
|
в состоянии покоя |
- |
|
|
Рабочая температура, °С |
-30...+50 |
|
|
Степень защиты |
IP54 |
|
|
Масса, кг |
1,5 |
|
Схема подключения клапанов ДМУ с электромагнитным (ЭМ) приводом

Типоразмерный ряд и значения площади живого сечения клапанов ДМУ с электромагнитным (ЭМ) приводом

Примечание:
1) Исполнения 1, 2 - клапан с двумя заслонками; исполнение 3, 4 - клапан с тремя заслонками;
исполнения 5, 6 - клапан с четырьмя заслонками.
2) Клапаны, размеры которых превышают указанные в таблице, конструируются индивидуально.
Не представленные в наличии модели доступны к поставке под заказ
Оповестить о поступлении
Всю необходимую информацию также можно получить по телефону «горячей линии»
+ 7 800 200 93 96или по телефону
+7 800 505 08 67 получить консультацию