Центр эстетической медицины

Общая площадь:
  • 200 кв.м.
Стадия проектирования:
  • стадия Р
Программа проектирования:
Инженерные системы:
  • общеобменная приточно-вытяжная вентиляция с механическим побуждением

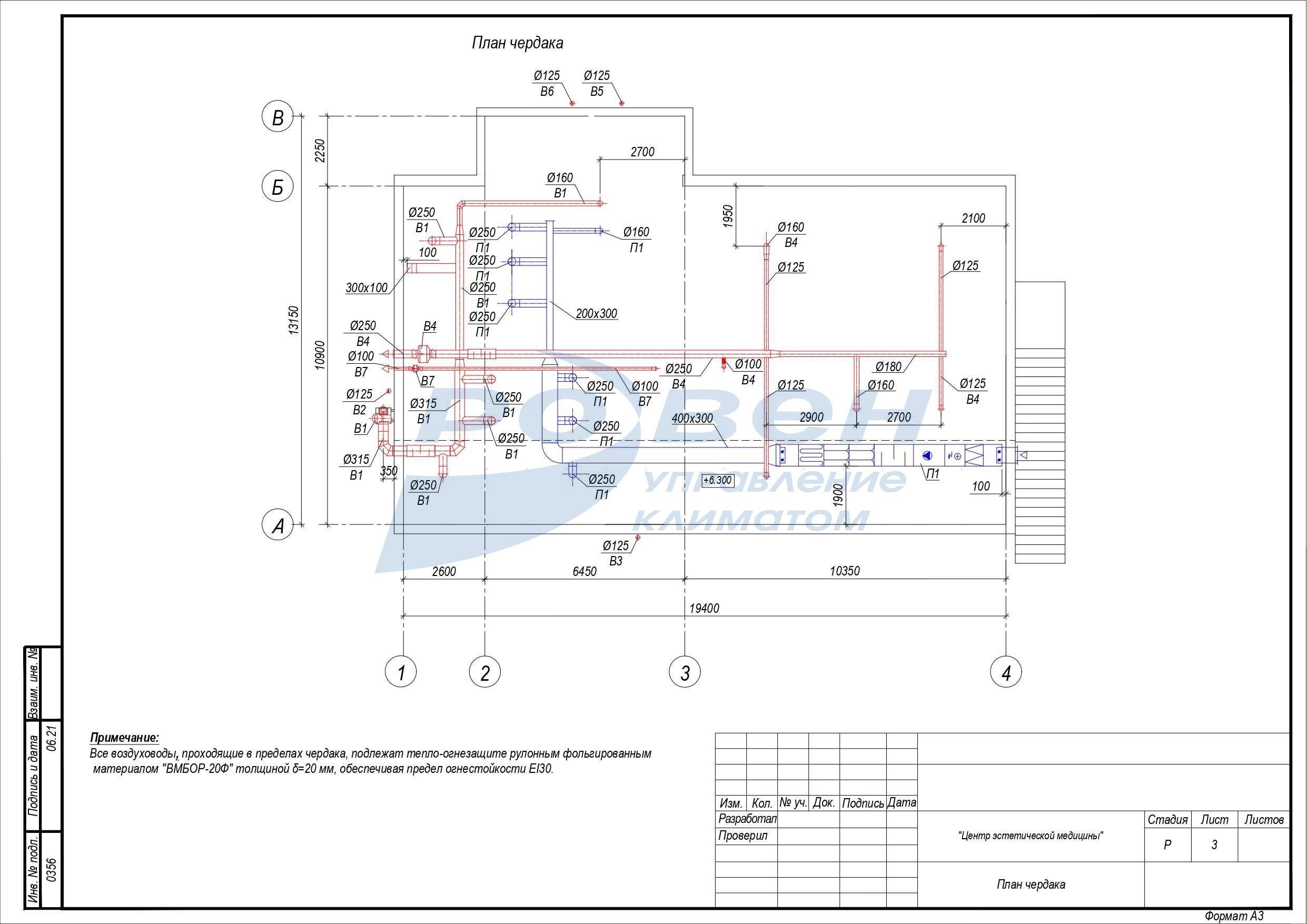
     Воздухообмены в помещениях медицинского назначения определены по кратности в зависимости от класса чистоты. Для помещений класса чистоты Б предусмотрена 3-х ступенчатая очистка воздуха.
     Автономная приточная установка П1-1600м3/ч предусматривается для операционной и лаборатории. Для палаты, стерилизационной и кабинетов подача воздуха - индивидуальными бризерами «Тион»: П2-П5 – 120м3/ч; П6-160м3/ч.
     Удаление воздуха из верхней зоны кабинетов (В4-690м3/ч). Из операционной предусматривается из двух зон: 40% - из верхней, 60% - из нижней зоны (В1-1300м3/ч). Из душевой, санузла и комнат хранения отходов канальными вентиляторами.<...

Применимые инженерные решения в проекте
Другие объекты этой отрасли