Приточно-вытяжная установка с пластинчатым рекуператором RWN-RP-ACБесплатный проект
Установка вентиляционная RWN-RP предназначена для общеобменной вентиляции помещений. Компактность установки позволяет располагать её под потолком или у стены, экономя при этом пространство.
Корпус установки выполнен из оцинкованной стали и по запросу, снаружи может быть покрыт порошковой краской. Стандартно панели в исполнении Compact имеют толщину 25 мм, а в исполнении Vertical - 50мм. Панели заполнены слоем теплошумоизоляции на основе негорючей минеральной ваты.
Пластинчатый рекуператор имеет алюминиевые ламели для обеспечения эффективной передачи теплоты.
Тип корпуса:
25m - бескаркасная конструкция с изоляцией 25 мм: Установка может располагаться вне помещения при температуре не ниже -20°С. Класс защиты – IP50.
50m - бескаркасная конструкция с изоляцией 50 мм: Установка может располагаться вне помещения при температуре не ниже -30°С. Класс защиты – IP50.
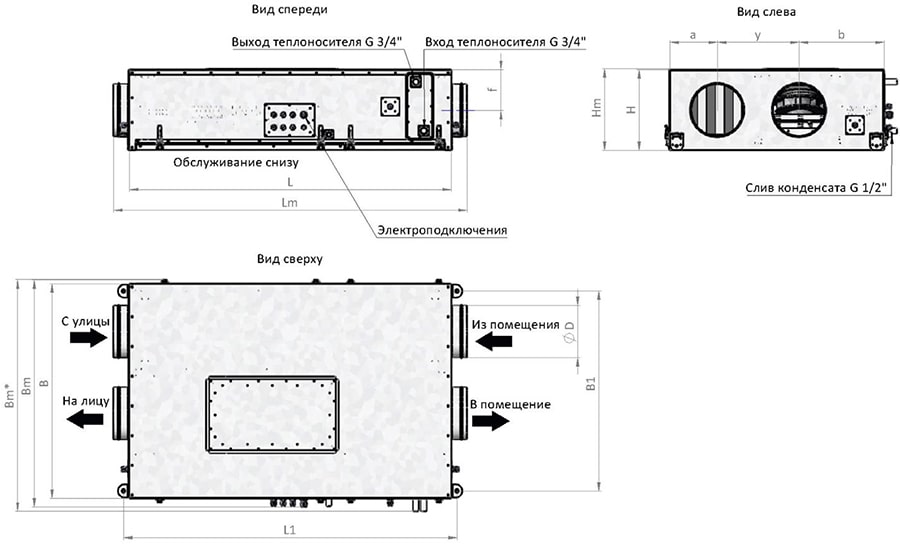
Габаритные размеры
Габаритные размеры RWN-RP-100(25m)…RWN-RP-400(25m) (мм) в исполнении корпуса Compact

У варианта с водяным нагревателем, патрубки теплоносителя выступают за габарит Bm максимум на 100 мм.
|
Типоразмер |
L |
B |
H |
L1 |
B1 |
a |
y |
b |
f |
D |
Lm |
Bm |
Hm |
Масса, кг |
|
100 |
1013 |
800 |
305 |
1053 |
742 |
177 |
304 |
318 |
152 |
Ø 125 |
1133 |
830 |
305 |
55 |
|
300 |
1013 |
800 |
305 |
1053 |
742 |
177 |
304 |
318 |
152 |
Ø 160 |
1133 |
830 |
305 |
55 |
|
400 |
1013 |
800 |
305 |
1053 |
742 |
177 |
304 |
318 |
152 |
Ø 200 |
1133 |
830 |
305 |
55 |
|
800 |
1226 |
816 |
308 |
1266 |
758 |
182 |
310 |
323 |
154 |
Ø 200 |
1346 |
846 |
308 |
78 |
Габаритные размеры RWN-RP-1500(25m) (мм) в исполнении корпуса Compact

|
Типоразмер |
L |
B |
H |
L1 |
B1 |
B2 |
B3 |
a |
y |
s |
f |
bxh |
Lm |
Bm |
Hm |
Масса, кг |
|
1500 |
1626 |
1435 |
352 |
1666 |
1378 |
760 |
618 |
336 |
620 |
477 |
177 |
400x200 |
1706 |
1473 |
393 |
130 |
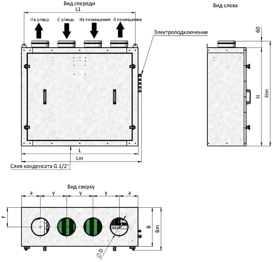
Габаритные размеры RWN-RP-100(50m)… RWN-RP-400(50m) (мм) в исполнении корпуса Vertical

|
Типоразмер |
L |
B |
H |
L1 |
H1 |
a |
y |
f |
Ø D |
Lm |
Bm |
Hm |
Масса, кг |
|
100 |
1068 |
355 |
896 |
1017 |
894 |
172 |
241 |
178 |
125 |
1100 |
395 |
956 |
70 |
|
300 |
1068 |
355 |
896 |
1017 |
894 |
172 |
241 |
178 |
160 |
1100 |
395 |
956 |
75 |
|
400 |
1068 |
355 |
896 |
1017 |
894 |
172 |
241 |
178 |
160 |
1100 |
395 |
956 |
80 |
Габаритные размеры RWN-RP-800(50m) (мм) в исполнении корпуса Vertical

Размер Lm* соответствует установке с водяным нагревателем.
Lm* = Lm + 115 мм.
Установка стандартно изготавливается на опорной раме высотой 100 мм.
|
Типоразмер |
L |
B |
H |
a |
y |
f |
Ø D |
Lm |
Bm |
Hm |
Масса, кг |
|
800 |
1340 |
375 |
900 |
205 |
310 |
166 |
200 |
1370 |
415 |
1060 |
109 |
Габаритные размеры RWN-RP-1500(50m) (мм) в исполнении корпуса Vertical

Пунктирной линией на чертеже обозначено расположение водяного нагревателя.
Установка стандартно изготавливается на опорной раме высотой 100 мм.
|
Типоразмер |
B |
H |
a |
y |
f |
D1 |
D2 |
Lm |
Bm |
Hm |
Масса ,кг |
|
1500 |
723 |
1000 |
194 |
290 |
361 |
400 |
200 |
1260 |
763 |
1100 |
146 |
Аэродинамические характеристики

Условное обозначение
Установка приточно-вытяжная с пластинчатым рекуператором RWN-RP-100(50m)-АС-HE0,4-Vertical(N)
где: RWN-RP - модель установки;
100 - типоразмер установки;
50m - толщина изоляции и тип корпуса;
AC - тип электродвигателя;
HE - электрический нагреватель (W - водяной нагреватель);
0,4 - мощность электрического нагревателя, кВт;
Vertical - постаментное исполнение - патрубки расположены сверху;
N - тип пульта управления.
Не представленные в наличии модели доступны к поставке под заказ
Оповестить о поступлении
Всю необходимую информацию также можно получить по телефону «горячей линии»
+ 7 800 200 93 96или по телефону
+7 800 505 08 67 получить консультацию